Verkocht:Vijverberg-Zuid 18, 4621 AT Bergen op Zoom - Foto
Verkocht
+26

Vijverberg-Zuid 18 4621 AT Bergen op Zoom

  • Maatschappelijk vastgoed
  • Bouwjaar 2007
  • 932 m² perceeloppervlakte
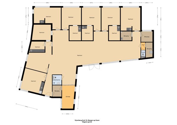
  • 344 m² vloeroppervlakte
  • D Energielabel D

Beschrijving

Op een gunstig gelegen locatie te koop aangeboden bedrijfspand, met maatschappelijke bestemming, aan de Vijverberg-Zuid 18 te Bergen op Zoom. Dit veelzijdige gebouw is bestemd voor maatschappelijke doeleinden en biedt een uitgelezen kans voor o.a. ondernemers, zorginstellingen of maatschappelijke organisaties!

Het object biedt niet alleen volop ruimte voor maatschappelijke activiteiten qua eigen gebruik, maar ook interessante mogelijkheden voor beleggers die op zoek zijn naar vastgoed met een duurzame bestemming.

HIGHLIGHTS:
• Gelegen in een rustige en goed bereikbare wijk van Bergen op Zoom, dichtbij belangrijke voorzieningen en met goede bereikbaarheid via zowel auto als openbaar vervoer
• Het gebouw beschikt over een ruim vloeroppervlak dat flexibel kan worden ingedeeld, met voldoende ruimte voor diverse gebruiksdoeleinden.
• Voldoende ruimte met een vloeroppervlakte van ca. 344 m² VVO en een perceeloppervlakte van ca. 932 m².
• Het object beschikt over een energielabel D met een geldigheid tot 24-01-2030.
• Kadastraal bekend gemeente Bergen op Zoom, sectie D, nummer 5774.

Bergen op Zoom is een gezellige en bourgondische stad met karakteristieke gebouwen en een historisch centrum. Tevens is de stad rijk aan restaurants, eetcafés en andere horecagelegenheden. Bergen op Zoom heeft een snelle verbinding met o.a. Breda, Rotterdam en Antwerpen.

Kwalitatieve beperking betreft een huisartsenpraktijk, apotheek of aanverwante bedrijfsuitoefening
Heden verhuurd tot minimaal het eerste kwartaal van 2025. Huurprijs per 01-10-2024: kale huur van € 8.432,35 per maand en servicekosten € 193,- per maand.

Het meetwerk is gebaseerd op de NEN2580. De Meetinstructie is bedoeld om een meer eenduidige manier van meten toe te passen voor het geven van een indicatie van de gebruiksoppervlakte. De Meetinstructie sluit verschillen in meetuitkomsten niet volledig uit, door bijvoorbeeld interpretatieverschillen, afrondingen of beperkingen bij het uitvoeren van de meting.

ALGEMEEN
Al het bovenstaande betreft informatie omtrent de verkoop van “Vijverberg-Zuid 18 te Bergen op Zoom”. De informatie is met zorg samengesteld, maar voor de juistheid ervan kan door Buuron & Kuipers Makelaars Taxateurs B.V. en Stadlander geen aansprakelijkheid worden aanvaard, noch aan de vermelde gegevens enig recht worden ontleend. Nadrukkelijk is vermeld dat deze informatieverstrekking niet als aanbieding of offerte mag worden beschouwd.

Kaart

Kenmerken

Overdracht

Referentienummer
2920
Vraagprijs
€ 695.000,- k.k.
Status
Verkocht
Aanvaarding
In overleg
Aangeboden sinds
Dinsdag 17 december 2024
Laatste wijziging
Dinsdag 8 juli 2025

Bouw

Type object
Maatschappelijk vastgoed, Zorginstelling
Soort bouw
Bestaande bouw
Bouwperiode
2007

Oppervlaktes en inhoud

Perceeloppervlakte
932 m²
VVO
344 m²

Locatie

Ligging
Aan rustige weg
Lokale voorzieningen
Bank op 1000 meter tot 1500 meter
Geldautomaat binnen 500 meter
Recreatie binnen 500 meter
Restaurant binnen 500 meter
Winkel binnen 500 meter
Supermarkt binnen 500 meter
Bereikbaarheid
Bushalte binnen 500 meter
Busknooppunt op 1000 meter tot 1500 meter
Metrohalte op 5000 meter of meer
Metroknooppunt op 5000 meter of meer
Treinstation op 1000 meter tot 1500 meter
Trein voorhalte op 5000 meter of meer
Afrit van de snelweg op 1000 meter tot 1500 meter
Tramhalte op 5000 meter of meer
Tramknooppunt op 5000 meter of meer

Energieverbruik

Energielabel
D

Kadastrale gegevens

Kadastrale aanduiding
Bergen Op Zoom D 5774
Perceeloppervlakte
932 m²
Eigendomsituatie
Eigen grond