Koop:Pater Luijtenpad 65, 4615 BK Bergen op Zoom - Foto
Topper
+44

Pater Luijtenpad 65 4615 BK Bergen op Zoom € 525.000,- k.k.

  • Appartement
  • 3 kamers
  • 2 slaapkamers
  • 1 badkamers
  • Bouwjaar 2025
  • 103 m² gebruiksoppervlakte
  • A++ Energielabel A++
Modern nieuwbouwappartement met een prachtig groen uitzicht!

Beschrijving

Levensloopbestendig wonen, in een modern nieuwbouwappartement, in alle rust maar toch op loopafstand van alle stadse voorzieningen? Dit energiezuinige appartementen gelegen in het in 2025 gebouwde complex ‘Residence Mazairac' laat al uw woonwensen uitkomen.

Hier komt rust en ruimte samen, terwijl het bruisende stadsleven letterlijk om de hoek ligt. Gezellige terrassen, hippe winkels en culturele bezienswaardigheden liggen dichtbij, waardoor wonen hier een perfecte balans biedt tussen ontspanning en stadsbeleving.

HIGHLIGHTS
• Energiezuinig & levensloop bestendig wonen met alle bouwkundige gemakken uit 2025, natuurlijk hoort daar voor u gasloos wonen bij.
• Rust en natuur binnen handbereik: geniet van het uitzicht op het groene Paterbos vanaf uw balkon.
• Een locatie om 'ja' tegen te zeggen! Centraal gelegen, met alle voorzieningen binnen handbereik, uitstekend bereikbaar met het openbaar vervoer en toch geniet u hier van rust en privacy.
• Gelegen op de derde en bovenste verdieping van de laagbouw: u heeft slechts aan één zijde buren en kijkt aan de andere kant uit op een groen dak. Dit zorgt voor extra privacy, rust en een vrij uitzicht.
• Het complex is volledig gasloos, voorzien van zonnepanelen (voor algemeen gebruik), warmtepomp, vloerverwarming én vloerkoeling voor een optimaal leefklimaat.
• Of het nu vriest of broeit: dit appartement biedt comfort tijdens alle seizoenen door de vloerverwarming en topkoeling. Dat is pas luxe!
• Het appartement is voorzien van een gloednieuwe Bruynzeel keuken en moderne badkamer.
• Praktisch en zorgeloos: uw auto veilig geparkeerd op afgesloten terrein, opslagruimte in de aparte berging en een entree met lift en intercom.

Jullie wonen nu in omgeving Bergen op Zoom of misschien wel in Groot Rijnmond of omgeving Breda. Jullie willen daar niets missen, maar willen toch wat meer rust en een luxer woongenot. Dan is dit jullie nieuwe appartement! Op korte afstand bevindt zich het stadscentrum, supermarkten, het park de kiek in de pot en de boulevard met diverse horeca.

Wacht niet langer om dit appartement thuis te gaan noemen en neem contact met ons op voor een exclusieve rondleiding en ontdek de ongeëvenaarde allure van Residence Mazairac.

Bijzonderheden
- Zie voor alle aanvullende informatie de dataroom van Eerlijk Bieden, de directe link naar de dataroom staat achter in deze brochure.

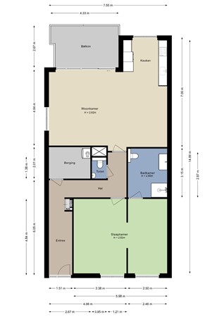
INDELING
ALGEMEEN ENTREE
Het appartement is toegankelijk middels de gemeenschappelijke entree die beschikt over o.a. de brievenbussen, intercom, lift, bergingen, parkeerplaatsen en trappenhuis.

APPARTEMENT
Het appartement is gelegen op de derde verdieping. Vanuit de lift of het trappenhuis bereikt u de galerij en vervolgend de entree van het appartement. De entree c.q. hal biedt toegang tot de meterkast, berging, riante slaapkamer, het betegelde toilet met fonteintje, de badkamer en de living.

Bij binnenkomst in de living met open keuken bent u direct onder de indruk van het prachtige uitzicht.

De moderne in hoek opgestelde Bruynzeel keukeninrichting is onder andere voorzien van onder- en bovenkastjes, vaatwasser, inductiekookplaat met afzuiging, koelkast, vriezer en combi-oven.

Het appartement beschikt over één riante slaapkamers, waar eventueel ook twee slaapkamers van gemaakt kunnen worden.

De moderne ruime badkamer is voorzien van een wastafelmeubel, inloopdouche, design radiator en 2e toilet.

Geniet op het balkon dagelijks en tijdens alle seizoenen van het ultieme vakantiegevoel door een uniek uitzicht op het groen van het Paterbos.

Het appartement beschikt over een parkeerplaats en berging op de begane grond.

WAAROM WONEN IN RESIDENCE MAZAIRAC
Residence Mazairac is centraal gelegen met alle voorzieningen op loopafstand: winkels, supermarkten, gezellige horecagelegenheden en diverse recreatiemogelijkheden. Er is een afgesloten, deels overdekt stallingsterrein met een algemene fietsenstalling en een gemeenschappelijke binnentuin op de eerste verdieping, perfect voor een wandeling of om even tot rust te komen.

Residence Mazairac is niet alleen modern en comfortabel, maar ook toekomstgericht. Het complex is volledig gasloos, met all-electric energievoorzieningen ondersteund door zonnepanelen. Daarnaast beschikt het appartement over vloerverwarming en vloerkoeling, zodat het hele jaar door genoten van een aangenaam binnenklimaat.

_______________

Het lijkt ons dus overduidelijk dat dit appartement zeer beslist een bezichtiging waard is!
Zien is geloven dus druk op de knop en neem contact met ons op.

Het meetwerk is gebaseerd op de NEN2580. De Meetinstructie is bedoeld om een meer eenduidige manier van meten toe te passen voor het geven van een indicatie van de gebruiksoppervlakte. De Meetinstructie sluit verschillen in meetuitkomsten niet volledig uit, door bijvoorbeeld interpretatieverschillen, afrondingen of beperkingen bij het uitvoeren van de meting.

ALGEMEEN
Bezichtiging uitsluitend via ons kantoor. Deze informatie is geheel vrijblijvend, uitsluitend voor geadresseerde bestemd en niet bedoeld als aanbod. Ten aanzien van de juistheid van de vermelde informatie kan door makelaarskantoor Buuron & Kuipers Makelaars Taxateurs B.V. geen aansprakelijkheid worden aanvaard, noch kan aan de vermelde informatie enig recht worden ontleend.

Kaart

Kenmerken

Overdracht

Referentienummer
3116
Vraagprijs
€ 525.000,- k.k.
Servicekosten
€ 100,14
Aanvaarding
Direct
Aangeboden sinds
Donderdag 21 augustus 2025
Laatste wijziging
Maandag 17 november 2025

Bouw

Type object
Appartement, galerijflat
Woonlaag
4e woonlaag
Soort bouw
Bestaande bouw
Toegankelijkheid
Mindervaliden
Senioren
Bouwperiode
2025
Dakbedekking
Bitumen
Type dak
Platdak
Isolatievormen
Dakisolatie
HR-glas
Muurisolatie
Vloerisolatie
Volledig geïsoleerd

Oppervlaktes en inhoud

Woonoppervlakte
103 m²
Inhoud
334 m³
Oppervlakte externe bergruimte
7 m²
Oppervlakte gebouwgebonden buitenruimte
11 m²

Indeling

Aantal bouwlagen
1
Aantal kamers
3 (waarvan 2 slaapkamers)
Aantal badkamers
1 (en 1 apart toilet)

Locatie

Ligging
Aan bosrand
Dichtbij openbaar vervoer
In centrum
Nabij snelweg

Energieverbruik

Energielabel
A++

Uitrusting

Aantal parkeerplaatsen
1
Verwarmingssysteem
Vloerverwarming
Warmtepomp
Ventilatie methode
Balansventilatie
Mechanische ventilatie
Natuurlijke ventilatie
Badkamervoorzieningen
Douche
Wastafel
Parkeergelegenheid
Parkeerplaats
Heeft een balkon
Ja
Heeft een lift
Ja
Heeft schuur/berging
Ja
Heeft ventilatie
Ja

Vereniging van Eigenaren

Ingeschreven bij de KvK
Ja
Jaarlijkse vergadering
Ja
Periodieke bijdrage
Ja
Reservefonds
Ja
Onderhoudsverwachting
Ja
Opstal verzekering
Ja

Kadastrale gegevens

Kadastrale aanduiding
Bergen Op Zoom F 10609
Perceeloppervlakte
1.790 m²
Omvang
Appartementsrecht of complex
Eigendomsituatie
Eigen grond

Brochure(s) en overige bijlagen

BuuronKuipers Brochure.PaterLuijtenpad65.BergenopZoom.pdf Download