Koop:Sint-Josephstraat 35, 4611 MJ Bergen op Zoom - Foto
Topper
+21

Sint-Josephstraat 35 4611 MJ Bergen op Zoom € 275.000,- k.k.

  • Woonhuis
  • 3 kamers
  • 2 slaapkamers
  • 1 badkamers
  • Bouwjaar 1960
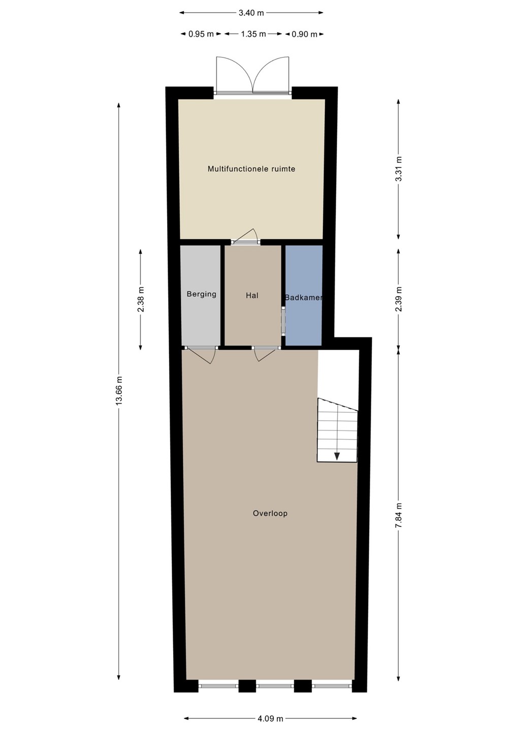
  • 120 m² perceeloppervlakte
  • 150 m² gebruiksoppervlakte
  • G Energielabel G

Beschrijving

Unieke kans in het centrum van Bergen op Zoom! Investeerders, aannemers en ontwikkelaars opgelet! Dit bijzondere pand biedt een ongeëvenaarde kans op een toplocatie in het hart van de stad. Of je nu wilt wonen, werken of investeren: de mogelijkheden zijn eindeloos.

HIGHLIGHTS
• Wat je ziet is wat je krijgt: dit object heeft alle elementen in huis om getransformeerd te worden tot een schitterende woon- of werkplek.
• Flexibel wonen, werken en genieten van het stadsleven in één!: combineer een winkel of kantoor op de begane grond met woonruimte daarboven.
• Meerdere wooneenheden mogelijk: van 1 complete woning tot 4 appartementen, zie de mogelijkheden van transformatie in de dataroom van Eerlijk Bieden.
• Zin in een kop koffie, een smakelijke lunch of de nieuwste modetrends shoppen? Het kan allemaal! Stap de deur uit en ontdek het bourgondische centrum van Bergen op Zoom.
• Creëer een groene oase midden in de stad in de stadstuin waar ontspanning, rust en privacy samenkomen.
• Voldoende ruimte in het centrum! Het object beschikt nu over een woonoppervlakte van ca. 151 m², inhoud van ca. 622 m² en een perceeloppervlakte van ca. 120 m², met de eventuele mogelijkheid tot optoppen.
Zie de mogelijkheden in de dataroom van Eerlijk Bieden

Bijzonderheden
- Zie voor alle aanvullende informatie de dataroom van Eerlijk Bieden, de directe link naar de dataroom staat achter in de brochure.

Authenticiteit en karaktervol wonen (en werken) is jullie ding, maar doen dit graag op een centrale plek met een stad die een rijke geschiedenis als Bergen op Zoom heeft. Om de hoek van de woning bevindt zich het stadscentrum met de grote markt, talrijke horeca gelegenheden en gevarieerd winkel aanbod voor al je wensen en willen.

Bergen op Zoom is een gezellige en bourgondische stad met karakteristieke gebouwen en een historisch centrum. Tevens is de stad rijk aan restaurants, eetcafés en andere horecagelegenheden. Bergen op Zoom heeft een snelle verbinding met o.a. Rotterdam, Antwerpen en Breda.

ALGEMENE INFORMATIE
Kadastrale gegevens:
Gemeente: Bergen op Zoom
Sectie: H
Nummer: 247

BESTEMMING
Conform het bestemmingsplan "Binnenstad" vastgesteld op 06-01-2010 en heeft het object de Bestemming 'Centrum'.
Informatie inzake gebruiksmogelijkheden en voorschriften is te verkrijgen via ons kantoor of bij de gemeente, dan wel via de website van Omgevingsloket.

________________

Het lijkt ons dus overduidelijk dat dit object zeer beslist een bezichtiging waard is!
Zien is geloven dus druk op de knop en neem contact met ons op.

Het meetwerk is gebaseerd op de NEN2580. De Meetinstructie is bedoeld om een meer eenduidige manier van meten toe te passen voor het geven van een indicatie van de gebruiksoppervlakte. De Meetinstructie sluit verschillen in meetuitkomsten niet volledig uit, door bijvoorbeeld interpretatieverschillen, afrondingen of beperkingen bij het uitvoeren van de meting.

ALGEMEEN
Bezichtiging uitsluitend via ons kantoor. Deze informatie is geheel vrijblijvend, uitsluitend voor geadresseerde bestemd en niet bedoeld als aanbod. Ten aanzien van de juistheid van de vermelde informatie kan door makelaarskantoor Buuron & Kuipers Makelaars Taxateurs B.V. geen aansprakelijkheid worden aanvaard, noch kan aan de vermelde informatie enig recht worden ontleend.

Kaart

Kenmerken

Overdracht

Referentienummer
3181
Vraagprijs
€ 275.000,- k.k.
Inrichting
Niet gestoffeerd
Inrichting
Niet gemeubileerd
Aanvaarding
In overleg
Aangeboden sinds
Dinsdag 28 oktober 2025
Laatste wijziging
Maandag 15 december 2025

Bouw

Type object
Woonhuis, herenhuis, tussenwoning
Soort bouw
Bestaande bouw
Toegankelijkheid
Senioren
Bouwperiode
1960
Dakbedekking
Bitumen
Steen
Type dak
Platdak
Isolatievormen
Gedeeltelijk dubbel glas

Oppervlaktes en inhoud

Perceeloppervlakte
120 m²
Woonoppervlakte
150 m²
Woonkameroppervlakte
34 m²
Keukenoppervlakte
7,82 m²
Inhoud
622 m³

Indeling

Aantal bouwlagen
2
Aantal kamers
3 (waarvan 2 slaapkamers)
Aantal badkamers
1 (en 2 aparte toiletten)

Locatie

Ligging
Dichtbij openbaar vervoer
In centrum
Nabij school

Tuin

Type
Patio
Oriëntering
Zuidoost
Staat
Dient nog te worden aangelegd.

Energieverbruik

Energielabel
G

Uitrusting

Badkamervoorzieningen
Douche
Dubbele wastafel
Tuin aanwezig
Ja

Kadastrale gegevens

Kadastrale aanduiding
Bergen op Zoom H 247
Perceeloppervlakte
120 m²
Omvang
Geheel perceel

Media

Video

Virtuele tour

Plattegronden

Brochure(s) en overige bijlagen

BuuronKuipers Brochure.SintJosephstraat35.BergenopZoom.pdf Download