Beschrijving
Wonen op een plek waar rust, comfort en ruimte samenkomen.. dat is wonen in Antverpia Stede.
Ontdek de ultieme combinatie van luxe wonen en modern comfort aan de prachtige Boulevard Antverpia! Op de voormalige locatie van Liebau Watersport komt een unieke ontwikkeling die resulteert in vier exclusieve, levensloopbestendige patiowoningen, direct gelegen aan het water.
Wenst u te wonen in één van deze unieke nieuwbouwwoningen? De medewerkers van Buuron & Kuipers Makelaars staan voor u klaar om alle vragen te beantwoorden.
BOUWNUMMER / KAVEL 4
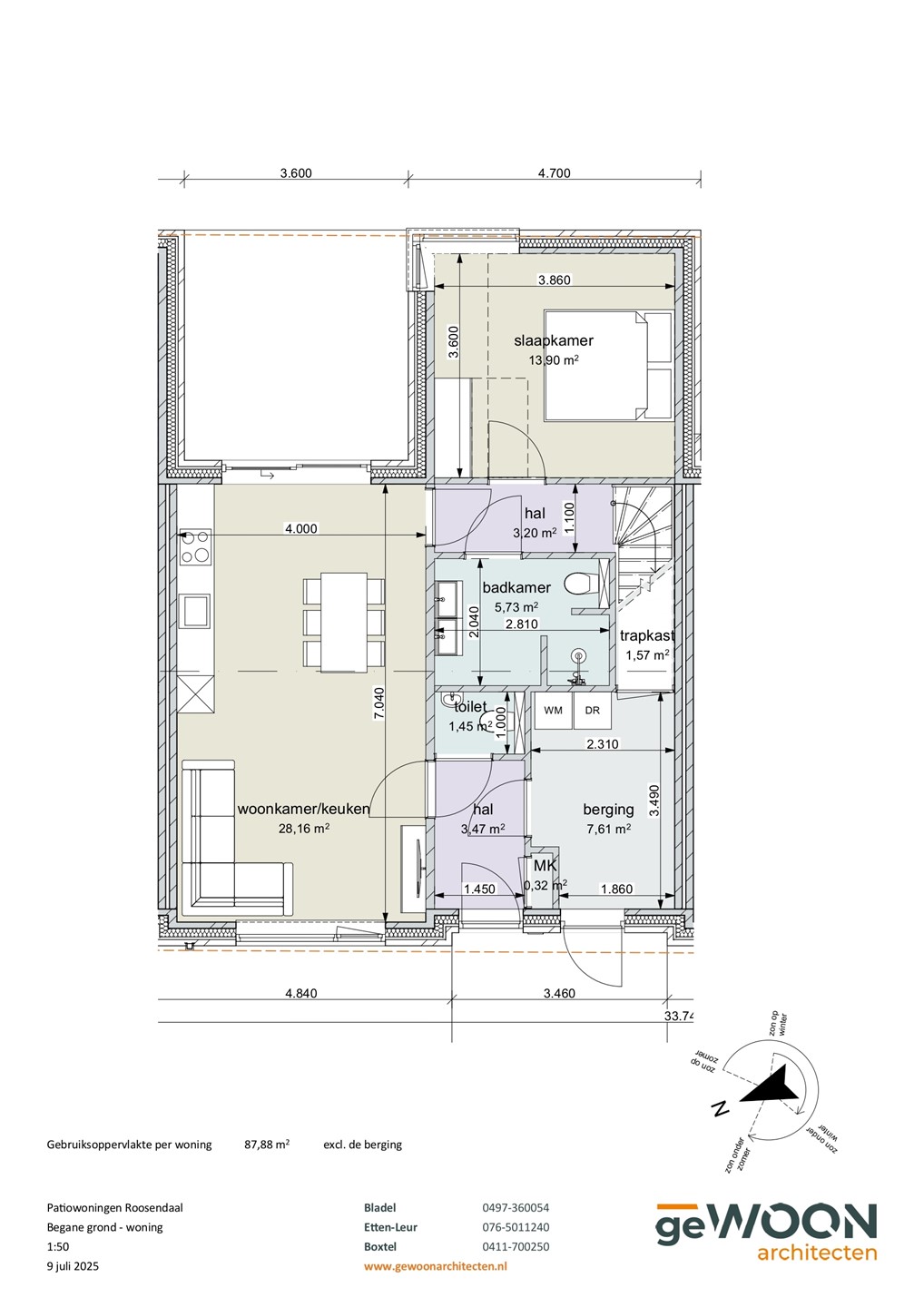
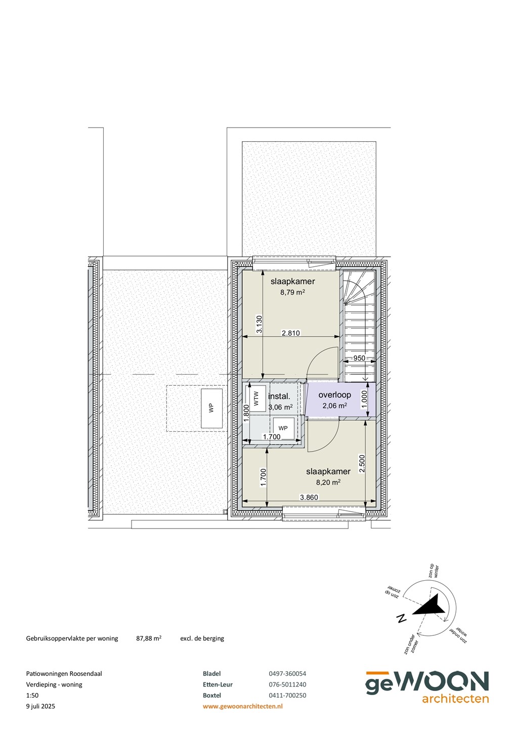
• Gebruiksoppervlakte van ca. 94 m²
• Perceeloppervlakte van ca. 144 m²
• V.O.N. prijs € 459.000,-
ALGEMENE INFORMATIE
Slim ingedeeld en toekomstbestendig ontworpen: deze woningen combineren comfort met gemak. Met een gebruiksoppervlakte van ca. 94 m² is er alle ruimte om jarenlang met plezier te wonen.
De tuin/patio op het oosten is een fijne plek om de ochtendzon te voelen, de dag rustig te beginnen of ’s avonds heerlijk buiten te tafelen. U woont in een groene omgeving, direct aan het water. Klinkt als een droom, nietwaar? Een droom die werkelijkheid kan worden!
DUURZAAMHEID
De woningen worden voorzien van de meest duurzame technieken op het gebied van isolatie, verwarmen, koelen en ventileren . Hoe beter een woning is geïsoleerd, wordt geventileerd en hoe meer duurzame installaties er worden toegepast, des te minder energie is er benodigd om de woning comfortabel te verwarmen of te koelen . De hoeveelheid energie welke benodigd is om de woning te verwarmen of te koelen wordt gewogen aan de hand van de eisen voor Bijna Energieneutrale Gebouwen (BENG)
SANITAIR
De badkamer speelt een steeds grotere rol in ons wooncomfort. Een plek voor een moment van rust in een fijne badruimte, wat tegenwoordig een ruimte vormt in de woning waar je steeds meer tijd doorbrengt. Passend sanitair is hiervoor een perfecte aanvulling. De badkamers worden voorzien van vloer- en wandtegels en uitgerust met een toilet, wastafel en inloopdouche aangeboden door BMN Nelemans.
KEUKEN
In de basis worden geen keukens geleverd bij de woningen in het nieuwbouwplan Antverpia Stede.
DISCLAIMER
Deze informatie brochure is met grote zorgvuldigheid samengesteld . De hierin opgenomen teksten, situatie tekeningen, artist impressions, foto’s en dergelijke zijn ter indicatie. Aan kennelijke fouten kunnen geen rechten worden ontleend .