+6

Kaaistraat 37* 4651 BL Steenbergen € 1.275,- /mnd

  • Winkelruimte
  • Bouwjaar 2024
  • 97 m² vloeroppervlakte

Beschrijving

Te huur aangeboden, ondernemers opgelet! In het stadshart van Steenbergen gelegen commerciële ruimte die een tal van mogelijkheden biedt.

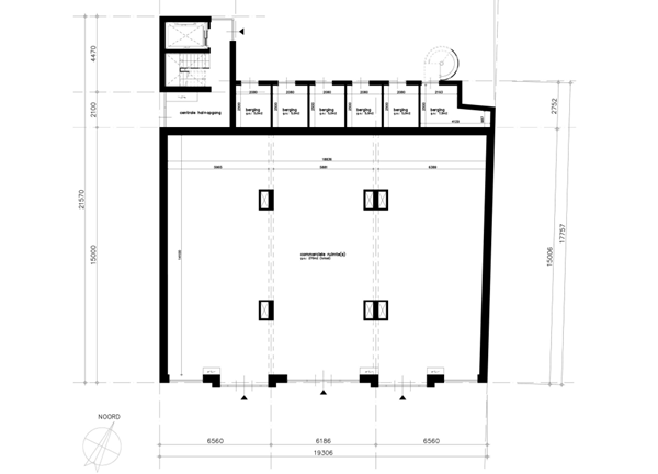
Deze unieke commerciële ruimte heeft een vloeroppervlakte van ca. 97 m² en is gelegen op de begane grond van het nieuwbouwproject VisserKaai.

HUURINFORMATIE
Commerciële ruimte 1 (grenzend aan vlooienstraatje): 97 m² BVO - € 1.275,- exclusief BTW per maand;

De ruimtes worden casco opgeleverd conform de technische omschrijving (die op aanvraag beschikbaar is).
In aanvulling op het casco wordt de ruimte opgeleverd met:
- dekvloer
- meterkast
- toilet
- airconditioning unit

Welstandsklasse
A1

Frontbreedte
Geheel 6,56 meter

Huurtermijn:
5 jaar + 5 jaar.

Opzegtermijn:
12 maanden.

Huurbetaling:
De totale betalingsverplichting dient per maand vooruit te worden voldaan.

Zekerheidstelling:
Een bankgarantie/waarborgsom ter grootte van drie maanden huur en servicekosten te vermeerderen met de geldende BTW.

Huurindexatie:
De huurprijs zal jaarlijks worden verhoogd op basis van de consumentenprijsindex (CPI), reeks CPI "Alle huishoudens" (2015 = 100), zoals wordt gepubliceerd door het Centraal Bureau voor de Statistiek (CBS).

Parkeergelegenheid:
Er is voldoende gratis parkeergelegenheid in de directe omgeving.

BESTEMMING 'CENTUM - 1'
De voor 'Centrum - 1' aangewezen gronden zijn bestemd voor:

wonen op bovenverdiepingen;
detailhandel, niet zijnde supermarkten en volumineuze detailhandel;
dienstverlening;
kantoren;
praktijkruimten;
(lokale) maatschappelijke voorzieningen;
dansscholen, sportscholen, fitnessruimten en daarmee gelijk te stellen functies;
horeca tot en met ten hoogste categorie 2 van de Staat van horeca-activiteiten;
ter plaatse van de aanduiding 'horeca tot en met categorie 3', mede voor horeca tot en met ten hoogste categorie 3 van de Staat van horeca-activiteiten;
ter plaatse van de aanduiding 'specifieke vorm van centrum - hoofdoriëntatie' dient de oriëntatie en hoofdingang van de bebouwing gelegen te zijn aan de zijde van het bestemmingsvlak met deze aanduiding;
ter plaatse van de aanduiding 'specifieke vorm van centrum - wonen op begane grond', mede voor wonen op de begane grond;
met de daarbij behorende;
bijbehorende bouwwerken;
bouwwerken, geen gebouwen zijnde;
wegen en paden;
parkeervoorzieningen;
groenvoorzieningen;
water en waterhuishoudkundige voorzieningen;
tuinen en erven.
_________________________

Het meetwerk is gebaseerd op de NEN2580. De Meetinstructie is bedoeld om een meer eenduidige manier van meten toe te passen voor het geven van een indicatie van de gebruiksoppervlakte. De Meetinstructie sluit verschillen in meetuitkomsten niet volledig uit, door bijvoorbeeld interpretatieverschillen, afrondingen of beperkingen bij het uitvoeren van de meting.

Mocht u ondanks dit toch nog vragen hebben, schroom dan niet om contact met ons op te nemen.

ALGEMEEN:
De maquette is bij ons op kantoor zichtbaar en de brochure is natuurlijk in het echt veel leuker, dus stap even binnen voor een kop koffie.
Deze informatie is geheel vrijblijvend, uitsluitend voor geadresseerde bestemd en niet bedoeld als aanbod. Ten aanzien van de juistheid van de vermelde informatie kan door makelaarskantoor Buuron & Kuipers Makelaars Taxateurs B.V. geen aansprakelijkheid worden aanvaard, noch kan aan de vermelde informatie enig recht worden ontleend.

Kaart

Kenmerken

Overdracht

Referentienummer
2060
Huurprijs
€ 1.275,- per maand
Inrichting
Niet gestoffeerd
Inrichting
Niet gemeubileerd
Aanvaarding
Direct
Aangeboden sinds
Woensdag 20 december 2023
Laatste wijziging
Donderdag 18 september 2025

Bouw

Type object
Winkelruimte
Soort bouw
Nieuwbouw
Bouwperiode
2024

Oppervlaktes en inhoud

VVO
97 m²
In units vanaf
97 m²

Indeling

Aantal bouwlagen
1

Locatie

Ligging
In centrum
Nabij winkelcentrum
Lokale voorzieningen
Bank binnen 500 meter
Recreatie binnen 500 meter
Restaurant binnen 500 meter
Winkel binnen 500 meter
Supermarkt binnen 500 meter
Bereikbaarheid
Bushalte op 1000 meter tot 1500 meter
Busknooppunt op 5000 meter of meer
Metrohalte op 5000 meter of meer
Metroknooppunt op 5000 meter of meer
Treinstation op 5000 meter of meer
Trein voorhalte op 5000 meter of meer
Afrit van de snelweg op 1000 meter tot 1500 meter
Tramhalte op 5000 meter of meer
Tramknooppunt op 5000 meter of meer

Uitrusting

Heeft een showroom
Ja

Media

Video

Plattegronden

Brochure(s) en overige bijlagen

BuuronKuipers.Brochure.VisserKaai.Commercieel-.pdf Download