+9

Van Andelstraat 10 4651 TA Steenbergen € 2.457,- /mnd € 140,-/m2/mnd

  • Kantoor
  • Bouwjaar 2024
  • 216 m² vloeroppervlakte

Beschrijving

Te huur: Moderne kantoorruimte op toplocatie!

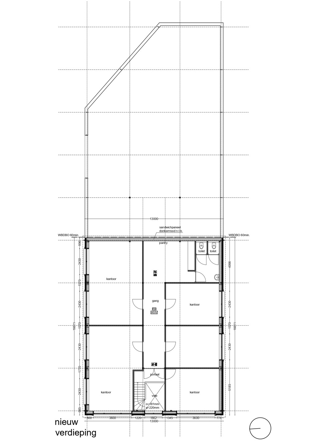
Maak kennis met deze aantrekkelijke kantoorruimte op de 1e verdieping aan de Van Andelstraat 10 te Steenbergen. Gelegen op het bedrijventerrein ‘Reinierpolder’, nabij de snelwegen A4 en A58. De kantoorruimte heeft een oppervlakte van ca. 216 m².

HIGHLIGHTS
• Optimale ligging met voldoende parkeergelegenheid in de directe omgeving
• Uitstekend bereikbaarheid naar o.a. Bergen op Zoom, Rotterdam, Breda en Antwerpen
• Op 1e verdieping gelegen, ca. 216 m² beschikbaar

Voorzieningen en servicekosten:
De servicekosten bedragen € 35 per m² VVO per jaar, exclusief BTW. Dit is inclusief onderhoud van de gemeenschappelijke ruimtes (61,5 m²) en andere faciliteiten.

Huurprijs en flexibiliteit:
Vraaghuur van € 140,- per m² per jaar, exclusief BTW en servicekosten

LOCATIE
Het object is gelegen op industrieterrein Reinierpolder: Van Andelstraat 10, Steenbergen.
De gemeente Steenbergen bestaat uit Steenbergen, Dinteloord, Nieuw-Vossemeer, De Heen, Welberg, Kruisland en is gelegen in de gemeente Noord-Brabant, tussen de wereldhavens Rotterdam en Antwerpen. Steenbergen heeft een oppervlakte van circa 160 km² en er wonen circa 25.053 inwoners. De open agrarische landschappen, natuur, water zijn belangrijke kenmerken van de gemeente, naast bedrijventerreinen en kassencomplexen. De ligging zorgt voor een aantrekkelijk woon- en werkklimaat.

Het industrieterrein Reinierpolder ligt pal naast de A4., de afrit van de A4 slechts op ca. 500-1000 meter De Rijksweg A4 loopt van knooppunt De Nieuwe Meer bij Amsterdam tot de Belgische grens bij Zandvliet (België). Ook het snelwegtraject tussen Klaaswaal en Dinteloord behoort tot Rijksweg 4, maar dit is bewegwijzerd als A29.Rijkswaterstaat is in 2011 gestart met de aanleg van de weg tussen Halsteren en Dinteloord. Hiervoor is gekozen voor de westelijke variant langs Steenbergen, met een aquaduct onder de Steenbergse Vliet. Doordat de nieuwe A4 is doorgetrokken ligt Steenbergen zeer gunstig aan de A4, in het midden tussen Rotterdam en Antwerpen. Rotterdam is op 50 km te bereiken en Antwerpen ook op 50 km. De op- en afrit van het de A4 liggen op 600 meter van de entree tot het bedrijventerrein.

INTERIEUR FOTO'S
De interieur foto's zijn van het kantoor op de begane grond en dienen ter inspiratie c.q. impressie van het aangeboden te huur gedeelte.

BESTEMMING
De voor 'Bedrijventerrein' aangewezen gronden zijn bestemd voor:

a. ter plaatse van de aanduiding 'bedrijf tot en met categorie 3.1', uitsluitend bedrijven van categorie 2 en 3.1 van de Staat van Bedrijfsactiviteiten 'bedrijventerrein';
b. ter plaatse van de aanduiding 'bedrijf tot en met categorie 3.2', uitsluitend bedrijven van categorie 2, 3.1 en 3.2 van de Staat van Bedrijfsactiviteiten 'bedrijventerrein';
c. ter plaatse van de aanduiding 'bedrijf tot en met categorie 4.1', uitsluitend bedrijven van categorie 2, 3.1, 3.2 en 4.1 van de Staat van Bedrijfsactiviteiten 'bedrijventerrein';
d. ter plaatse van de aanduiding 'bedrijf tot en met categorie 4.2', uitsluitend bedrijven van categorie 2, 3.1, 3.2, 4.1 en 4.2 van de Staat van Bedrijfsactiviteiten 'bedrijventerrein';
e. ter plaats van de aanduiding 'bedrijf van categorie 2', uitsluitend bedrijven uit categorie 2 van de 'Staat van Bedrijfsactiviteiten 'bedrijventerrein'';
f. internetwinkel zonder fysieke bezoekmogelijkheid;
g. bedrijfsgebonden kantoren;
h. bedrijfsverzamelgebouwen;
i. afhaalpunten;
j. bestaand gebruik dat niet is genoemd onder a tot en met i;
k. wonen in bestaande bedrijfswoningen en in samenhang daarmee de uitoefening van een aan huis verbonden beroep;
l. bestaande bedrijven met een afwijkende milieucategorie dan op basis van de a tot en met e is toegestaan;
m. ter plaatse van de aanduiding 'agrarisch bedrijf', tevens voor een agrarisch bedrijf, grondgebonden;
n. ter plaatse van de aanduiding 'risicovolle inrichting', tevens voor een bestaande Bevi-inrichting.

met de daarbij behorende;

o. wegen, paden en parkeervoorzieningen;
p. groenvoorzieningen;
q. water en voorzieningen voor de waterhuishouding;
r. voorzieningen van algemeen nut;
s. tuinen en erven

ALGEMEEN
Al het bovenstaande betreft informatie omtrent de verkoop van “Van Andelstraat 10 te Steenbergen”. De informatie is met zorg samengesteld, maar voor de juistheid ervan kan door Buuron & Kuipers Makelaars Taxateurs B.V. geen aansprakelijkheid worden aanvaard, noch aan de vermelde gegevens enig recht worden ontleend. Nadrukkelijk is vermeld dat deze informatieverstrekking niet als aanbieding of offerte mag worden beschouwd.

Kaart

Kenmerken

Overdracht

Referentienummer
2835
Huurprijs
€ 2.457,- per maand
Aanvaarding
Direct
Aangeboden sinds
Donderdag 13 februari 2025
Laatste wijziging
Donderdag 27 november 2025

Bouw

Type object
Kantoor
Soort bouw
Bestaande bouw
Toegankelijkheid
Mindervaliden
Senioren
Bouwperiode
2024

Oppervlaktes en inhoud

VVO
216 m²
In units vanaf
22,1 m²

Indeling

Aantal bouwlagen
1

Locatie

Ligging
Bedrijventerrein
Lokale voorzieningen
Bank op 1500 meter tot 2000 meter
Geldautomaat op 500 meter tot 1000 meter
Recreatie op 3000 meter tot 4000 meter
Restaurant op 1000 meter tot 1500 meter
Winkel op 500 meter tot 1000 meter
Bereikbaarheid
Bushalte op 1500 meter tot 2000 meter
Busknooppunt op 5000 meter of meer
Metrohalte op 5000 meter of meer
Metroknooppunt op 5000 meter of meer
Treinstation op 5000 meter of meer
Trein voorhalte op 5000 meter of meer
Afrit van de snelweg binnen 500 meter
Tramhalte op 5000 meter of meer
Tramknooppunt op 5000 meter of meer

Uitrusting

Aantal parkeerplaatsen
4

Kadastrale gegevens

Kadastrale aanduiding
Steenbergen E 288
Perceeloppervlakte
1.295 m²
Omvang
Geheel perceel
Lasten
Met afkoopoptie

Media

Foto's

Video

Plattegronden

Brochure(s) en overige bijlagen

BuuronKuipers.Brochure.VanAndelstraat10.Steenbergen-.pdf Download