Verkocht onder voorbehoud:Kaaistraat 14, 4651 BN Steenbergen - Foto
Verkocht onder voorbehoud
+54

Kaaistraat 14 4651 BN Steenbergen € 379.000,- k.k.

  • Winkelruimte
  • Bouwjaar 1832
  • 182 m² perceeloppervlakte
  • 74 m² vloeroppervlakte
  • G Energielabel G

Beschrijving

Karaktervol gemeentelijk monumentaal woon-/winkelpand met groot bijgebouw in het hart van Steenbergen (van oudsher bekend als "De Klokgevel”!

Stap binnen in dit unieke pand en laat je verrassen door de sfeer en mogelijkheden! Gelegen aan de bruisende hoofdstraat van Steenbergen, op een toplocatie waar winkelend publiek dagelijks passeert, biedt dit monumentale pand een bijzondere combinatie van wonen, werken en ondernemen. Momenteel in gebruik als koffiemuseum, maar het is geschikt voor talloze andere functies: een sfeervolle winkel, creatieve werkruimte of kantoor in combinatie met wonen op de eerste verdieping: de mogelijkheden zijn eindeloos!

Highlights

• Locatie, locatie, locatie! Gelegen in het bourgondische Steenbergen, met een sfeervol centrum en alle voorzieningen binnen handbereik.
• Ontwikkelmogelijkheden? Uit het vooroverleg met de Gemeente Steenbergen blijkt dat het misschien mogelijk is om een tweede wooneenheid te creëren aan de Berenstraat zijde. Communicatie hieromtrent is opgenomen in de dataroom van Eerlijk Bieden. Voorzijde heeft Centrum 1 bestemming en dus uitsluitend wonen op de verdieping met commercieel op de begane grond. Achterzijde Berenstraat is deels bestemming Centrum 2
• Ruimtelijk & veelzijdig: zowel het hoofdgebouw als het grote bijgebouw bieden talloze mogelijkheden voor wonen, werken of opslag.
• Gratis parkeren in het centrum maakt het extra praktisch voor jezelf, gasten of klanten.
• Het pand heeft een sfeervolle en karaktervolle uitstraling, met veel lichtinval en originele details die warmte en charme geven. Eenopbject met historie, zie verder in de brochure een nadere toelichting
• Stadstuin op het zonnige Zuiden, geniet hier van het buitenleven in de zon midden in de stad.
• Object heeft aan voorzijde perceel bestemming 'Centrum-1' en aan de achterzijde 'Centrum-2' volgens het Omgevingsloket.
• Ruimte in overvloed! Wij bieden een gebruiksoppervlakte van ca. 187 m², overige inpandige ruimte van ca. 5 m², ca. 74 m² commerciële ruimte en een inhoud van ca. 932 m³.

U woont/of werkt nu in Steenbergen of misschien wel in Groot Rijnmond, of omgeving Breda. Dan is dit wellicht wat voor jullie! Gelegen in het stadscentrum en op korte afstand van de levendige jachthaven, supermarkten, het stadspark en diverse horeca.

BIJZONDERHEDEN:
- Zie o.a. de door verkoper ingevulde Vragenlijst en Lijst van Zaken in de dataroom van Eerlijk Bieden, de directe link naar de dataroom staat achter in de brochure.

Steenbergen is een gezellig stadje, rijk aan restaurants, eetcafés en andere horecagelegenheden. Daarnaast zijn er volop sport- en recreatiemogelijkheden, en biedt het stadje een compleet winkelaanbod. Wie op zoek is naar een rustieke woonomgeving, vindt hier volop sfeer en karakter. De idyllische loop- en fietsroutes rondom Steenbergen en richting Zeeland geven een prachtig kijkje in het West-Brabantse landschap. Steenbergen heeft bovendien snelle verbindingen naar onder andere Rotterdam, Breda en Antwerpen.

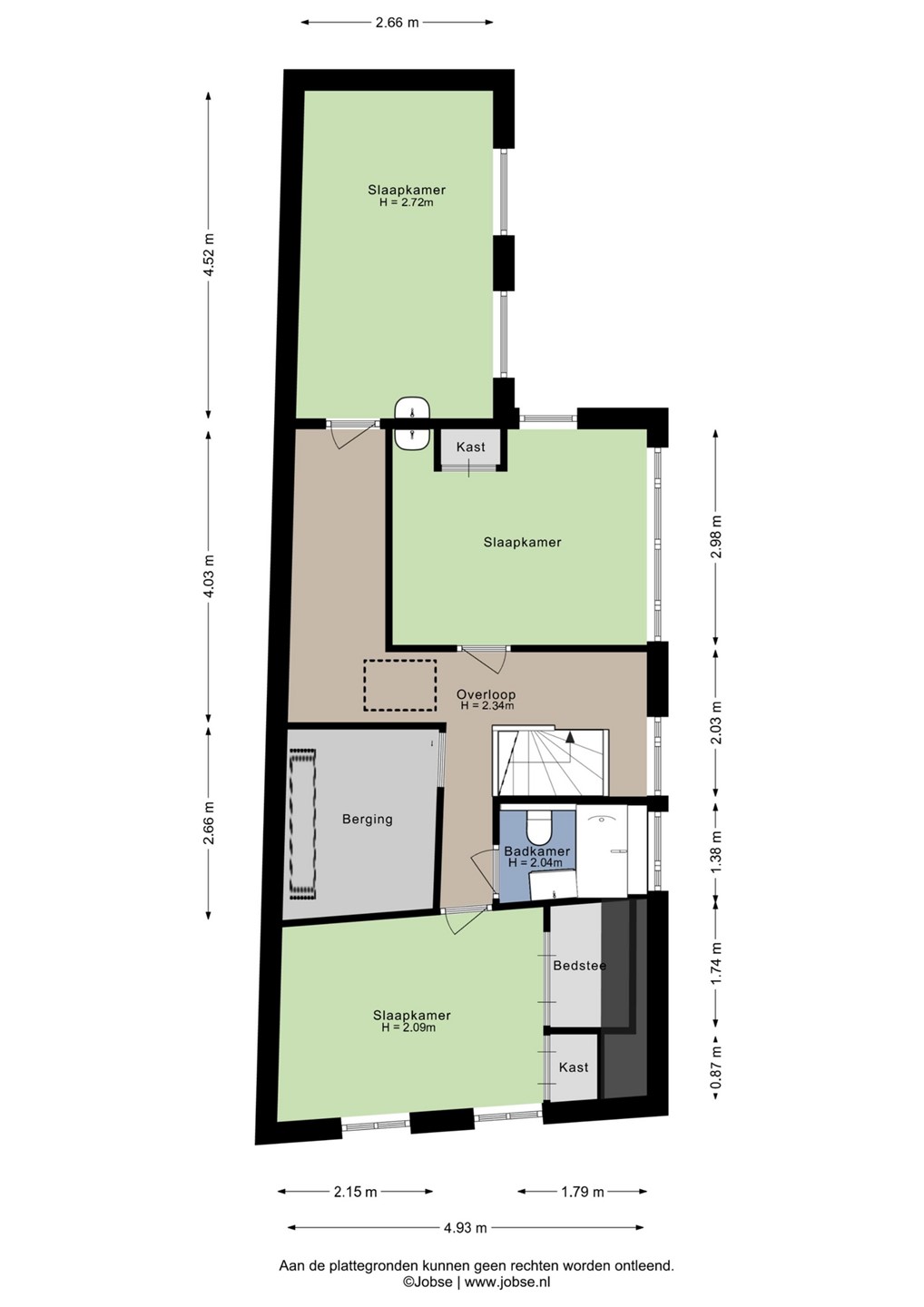
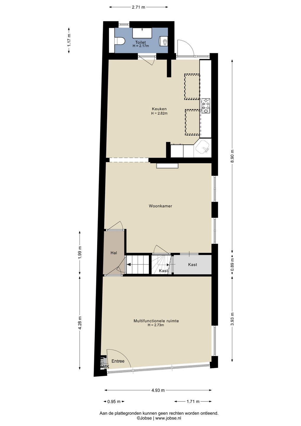
INDELING
BEGANE GROND
Op een A1 locatie gelegen nette winkelruimte. De winkelruimte, op de begane grond, is voorzien van een mooie riante glazen hoekpui.

Vanuit de winkelruimte is er toegang tot de sfeervolle achterkamer. De achterkamer biedt toegang tot de bergkast en de keuken.

Riante keuken met voldoende ruimte om nieuwe recepten uit te proberen! De keuken biedt toegang tot het betegeld toilet en de tuin.

1e VERDIEPING (hoofdbouw Kaaistraat)
Het object beschikt over 4 kamers op de eerste verdieping, een ruime overloop en de badkamer met toilet, wastafel en douche.

De hoofdbouw aande Kaaistraat beschikte verder nog over een heerlijke kelder en een bergzolder

TUIN
De onderhoudsvriendelijke stadstuin is voorzien van terrastegels en biedt toegang tot het bijgebouw. De tuin is gelegen op het zonnige Zuiden.

BIJGEBOUW (Berenstraat zijde)
Multifunctionele ruimte met een tal aan mogelijkheden! De ruimte biedt toegang tot de eerste verdieping en de zij-/achterzijde middels openslaande deuren.

______________

Het lijkt ons dus overduidelijk dat dit object zeer beslist een bezichtiging waard is!
Zien is geloven dus druk op de knop en neem contact met ons op.

Het meetwerk is gebaseerd op de NEN2580. De Meetinstructie is bedoeld om een meer eenduidige manier van meten toe te passen voor het geven van een indicatie van de gebruiksoppervlakte. De Meetinstructie sluit verschillen in meetuitkomsten niet volledig uit, door bijvoorbeeld interpretatieverschillen, afrondingen of beperkingen bij het uitvoeren van de meting.

ALGEMEEN
Bezichtiging uitsluitend via ons kantoor. Deze informatie is geheel vrijblijvend, uitsluitend voor geadresseerde bestemd en niet bedoeld als aanbod. Ten aanzien van de juistheid van de vermelde informatie kan door makelaarskantoor Buuron & Kuipers Makelaars Taxateurs B.V. geen aansprakelijkheid worden aanvaard, noch kan aan de vermelde informatie enig recht worden ontleend.

Kaart

Kenmerken

Overdracht

Referentienummer
3336
Vraagprijs
€ 379.000,- k.k.
Status
Verkocht onder voorbehoud
Aanvaarding
In overleg
Aangeboden sinds
Vrijdag 20 februari 2026
Laatste wijziging
Maandag 30 maart 2026

Bouw

Type object
Winkelruimte
Soort bouw
Bestaande bouw
Bouwperiode
1832

Oppervlaktes en inhoud

Perceeloppervlakte
182 m²
VVO
74 m²
In units vanaf
15 m²
Inhoud
932 m³
Verkoopoppervlakte
187 m²

Indeling

Aantal bouwlagen
4

Locatie

Ligging
In centrum
Lokale voorzieningen
Bank binnen 500 meter
Geldautomaat binnen 500 meter
Recreatie binnen 500 meter
Restaurant binnen 500 meter
Winkel binnen 500 meter
Supermarkt binnen 500 meter
Bereikbaarheid
Bushalte op 500 meter tot 1000 meter
Busknooppunt op 500 meter tot 1000 meter
Metrohalte op 5000 meter of meer
Metroknooppunt op 5000 meter of meer
Treinstation op 5000 meter of meer
Trein voorhalte op 4000 meter tot 5000 meter
Afrit van de snelweg op 1000 meter tot 1500 meter
Tramhalte op 5000 meter of meer
Tramknooppunt op 5000 meter of meer

Tuin

Staat
Normaal

Energieverbruik

Energielabel
G

Uitrusting

Aantal parkeerplaatsen
1
Aantal overdekte parkeerplaatsen
1

Kadastrale gegevens

Kadastrale aanduiding
Steenbergen W 2561
Perceeloppervlakte
182 m²
Omvang
Geheel perceel
Eigendomsituatie
Eigen grond
Lasten
Met afkoopoptie

Media

Video

Virtuele tour

Plattegronden

Brochure(s) en overige bijlagen

BuuronKuipers.Brochure.Kaaistraat14.Steenbergen.pdf Download