Nieuw in verkoop:Palingstraat 3, 4617 AD Bergen op Zoom - Foto
Topper Nieuw in verkoop
+51

Palingstraat 3 4617 AD Bergen op Zoom € 399.000,- k.k.

  • Woonhuis
  • 5 kamers
  • 4 slaapkamers
  • 1 badkamers
  • Bouwjaar 1994
  • 143 m² perceeloppervlakte
  • 122 m² gebruiksoppervlakte
  • B Energielabel B
Moderne uitgebouwde tussenwoning in Bergen op Zoom!

Beschrijving

Al tijden op zoek naar een prachtig modern afgewerkte woning met voldoende slaapkamers én op een gunstige locatie? Woondromen zouden zomaar werkelijkheid kunnen worden! Deze uitgebouwde tussenwoning, gelegen op de geliefde Bergse Plaat is werkelijk om door een ringetje te halen en biedt alles waar jullie maar van kunnen (gaan) dromen!

HIGHLIGHTS
• De woning is afgewerkt naar de woonwensen van nu, zijn jullie bij het zien van de foto's ook verliefd?
• Laat die logeerpartijtjes maar komen! Met maar liefst 4 slaapkamers, mede door de vaste trap naar de tweede verdieping hebben jullie genoeg slaapruimte! Ook handig voor de eventuele gezinsuitbreiding natuurlijk.
• Altijd al gedroomd van een keuken waar Gordon Ramsay jaloers op zou zijn? Check! Bekijk de foto's van deze moderne keuken (2019) maar eens goed, want die is voorzien van alle gemakken.
• De achtertuin nodigt zeker uit om met het gezin, familie en vrienden lekker te bbq'en en te genieten van het buitenleven!
• Toplocatie op de Bergse Plaat! Geniet van de boulevard, het water en winkelcentrum De Zeeland binnen handbereik. Hier woon je rustig en groen, terwijl je toch alle voorzieningen van de buurt dichtbij hebt!
• Ruim, maar ook sfeervol wonen? Wij bieden een woonoppervlakte van ca. 122 m², externe bergruimte van ca. 7 m² en een inhoud van ca. 446 m³.

Bijzonderheden:
- Zie o.a. de door verkoper ingevulde Vragenlijst en Lijst van Zaken in de dataroom van Eerlijk Bieden, de directe link naar de dataroom staat achter in de brochure.

Jullie wonen nu in omgeving Bergen op Zoom of misschien wel in Groot Rijnmond of omgeving Breda. Jullie willen daar niets missen, maar willen toch wat meer rust en een luxer woongenot. Dan is dit jullie nieuwe woning! Op korte afstand bevindt zich het stadscentrum, supermarkten, het park de "Kijk in de pot" en de boulevard met diverse horeca.

Bergen op Zoom is een gezellige en bourgondische stad met karakteristieke gebouwen en een historisch centrum. Tevens is de stad rijk aan restaurants, eetcafés en andere horecagelegenheden. Bergen op Zoom heeft een snelle verbinding met o.a. Rotterdam, Antwerpen en Breda.

INDELING
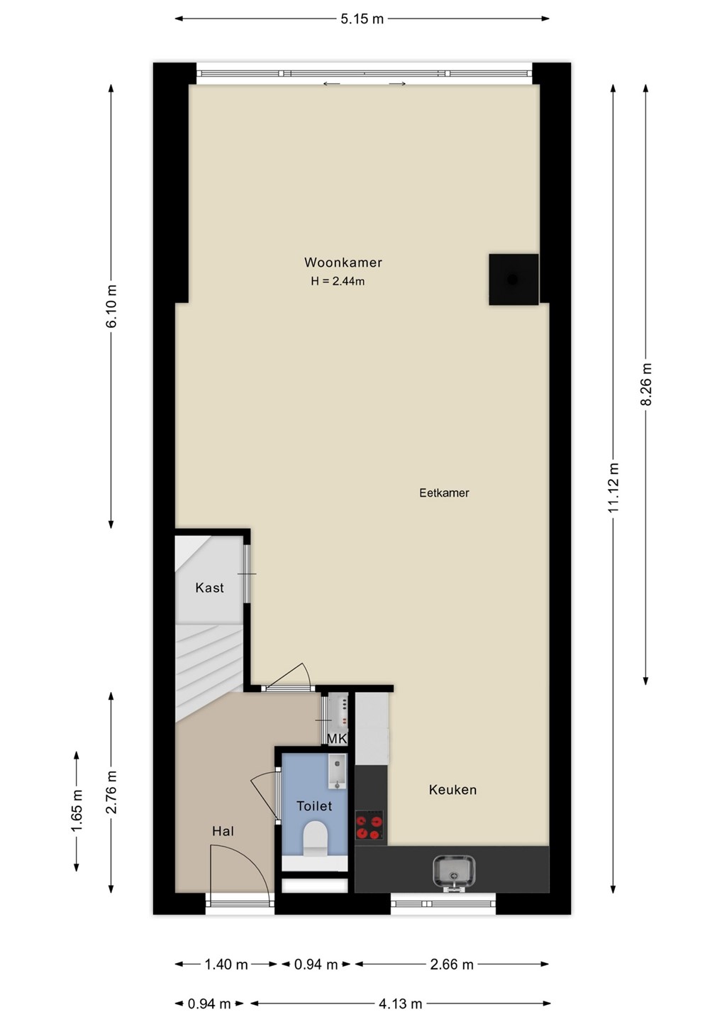
BEGANE GROND
Jullie komen aan in deze geliefde woonwijk op de Bergse Plaat, parkeren de auto en lopen middels de fraai aangelegde voortuin de woning binnen. De hal c.q. entree is afgewerkt met een laminaat vloer, gestucte wanden en een gestuct plafond. De hal biedt toegang tot de woonkamer, keuken, meterkast, betegeld toilet met fonteintje, garderobe en eerste verdieping middels een vaste trapopgang.

De sfeervolle uitgebouwde woonkamer is de ideale plek om heerlijk te ontspannen op de bank voor een avondje Netflix. De woonkamer is afgewerkt met een laminaat vloer, gestucte wanden en een gestuct plafond met inbouwverlichting. De woonkamer is voorzien van een convectorput, gashaard, bergkast, airconditioning en kunststof schuifpui die toegang biedt tot de achtertuin.

Ontdek het plezier van koken in deze heerlijke keuken uit 2019! De open keuken is afgewerkt met een laminaat vloer, gestucte wanden en een gestuct plafond. De in hoek opgestelde keukeninrichting is voorzien van een kunststof keukenblad, kastruimte, spoelbak met Quooker, inductiekookplaat, afzuigkap, koelkast, vaatwasser en combimagnetron.

1e VERDIEPING
Middels de vaste trap op de begane grond bereiken jullie de overloop op de eerste verdieping. De overloop is afgewerkt met een laminaat vloer, gestucte wanden en een gestuct plafond. De overloop biedt toegang tot 3 slaapkamers, de badkamer en tweede verdieping middels een vaste trapopgang.

Slaapkamer 1 is afgewerkt met een laminaat vloer, gestucte wanden en een spuitwerk plafond. De slaapkamer is voorzien van een elektrisch rolluik.

Slaapkamer 2 is afgewerkt met een laminaat vloer, gestucte wanden en een spuitwerk plafond. De slaapkamer is voorzien van een elektrisch rolluik.

Slaapkamer 3 is afgewerkt met een laminaat vloer, gestucte wanden en een spuitwerk plafond. De slaapkamer is voorzien van een elektrisch rolluik.

De badkamer is afgewerkt met een betegelde vloer, betegelde wanden en een gestuct plafond. De badkamer is voorzien van een inloopdouche, 2e toilet, wastafelmeubel, design radiator en een elektrisch rolluik.

2e VERDIEPING
Middels de vaste trap op de eerste verdieping bereiken jullie de slaapkamer op de tweede verdieping. De slaapkamer is afgewerkt met een laminaat vloer, gesauste wanden en een gesaust plafond. De slaapkamer is voorzien van de aansluiting voor wasmachine en droger, CV-Ketel (Nefit, 2011), MV-Unit, knieschotkasten, kunststof dakkapel, elektrisch rolluik en airconditioning.

TUIN
De woning beschikt over een voor- en achtertuin. Geniet 's ochtends van het eerste zonlicht de oostelijk gelegen achtertuin met een vers ontbijtje en een kop koffie, een heerlijk begin van de dag! De tuin is onderhoudsvriendelijk aangelegd met sierbestrating, een achterom en een vrijstaande stenen berging met elektra. Meer tijd om te genieten en minder tijd aan onderhoud besteden!

_________________

Het lijkt ons dus overduidelijk dat deze woning zeer beslist een bezichtiging waard is!
Zien is geloven dus druk op de knop en neem contact met ons op.

Het meetwerk is gebaseerd op de NEN2580. De Meetinstructie is bedoeld om een meer eenduidige manier van meten toe te passen voor het geven van een indicatie van de gebruiksoppervlakte. De Meetinstructie sluit verschillen in meetuitkomsten niet volledig uit, door bijvoorbeeld interpretatieverschillen, afrondingen of beperkingen bij het uitvoeren van de meting.

ALGEMEEN
Bezichtiging uitsluitend via ons kantoor. Deze informatie is geheel vrijblijvend, uitsluitend voor geadresseerde bestemd en niet bedoeld als aanbod. Ten aanzien van de juistheid van de vermelde informatie kan door makelaarskantoor Buuron & Kuipers Makelaars Taxateurs B.V. geen aansprakelijkheid worden aanvaard, noch kan aan de vermelde informatie enig recht worden ontleend.

Kaart

Kenmerken

Overdracht

Referentienummer
3183
Vraagprijs
€ 399.000,- k.k.
Status
Nieuw in verkoop
Aanvaarding
In overleg
Aangeboden sinds
Woensdag 1 oktober 2025

Bouw

Type object
Woonhuis, eengezinswoning, tussenwoning
Soort bouw
Bestaande bouw
Bouwperiode
1994
Dakbedekking
Dakpannen
Type dak
Zadeldak
Isolatievormen
Dakisolatie
Dubbel glas
HR-glas
Muurisolatie
Vloerisolatie

Oppervlaktes en inhoud

Perceeloppervlakte
143 m²
Woonoppervlakte
122 m²
Inhoud
446 m³
Oppervlakte externe bergruimte
7 m²

Indeling

Aantal bouwlagen
3
Aantal kamers
5 (waarvan 4 slaapkamers)
Aantal badkamers
1 (en 1 apart toilet)

Locatie

Ligging
In woonwijk

Tuin

Type
Achtertuin
Oriëntering
Oosten
Heeft een achterom
Ja
Staat
Goed onderhouden
Tuin 2 - Type
Voortuin
Tuin 2 - Staat
Goed onderhouden

Energieverbruik

Energielabel
B

CV ketel

CV ketel
Nefit
Warmtebron
Gas
Bouwjaar
2021
Combiketel
Ja
Eigendom
Eigendom

Uitrusting

Warm water
CV-ketel
Verwarmingssysteem
Airconditioning
Centrale verwarming
Gashaard
Ventilatie methode
Natuurlijke ventilatie
Keukenvoorzieningen
Inbouwapparatuur
Badkamervoorzieningen
Douche
Toilet
Wastafel
Heeft airco
Ja
Heeft een rookkanaal
Ja
Tuin aanwezig
Ja
Heeft rolluiken
Ja
Heeft schuur/berging
Ja
Heeft een schuifpui
Ja

Kadastrale gegevens

Kadastrale aanduiding
Bergen op Zoom M 801
Perceeloppervlakte
143 m²
Omvang
Geheel perceel
Eigendomsituatie
Eigen grond

Brochure(s) en overige bijlagen

BuuronKuipers.Brochure.Palingstraat3.BergenopZoom.pdf Download