Nieuw in verkoop:Sint-Josephstraat 45a, 4611 MK Bergen op Zoom - Foto
Topper Nieuw in verkoop
+41

Sint-Josephstraat 45a 4611 MK Bergen op Zoom € 399.000,- k.k.

  • Appartement
  • 4 kamers
  • 3 slaapkamers
  • 1 badkamers
  • Bouwjaar 2001
  • 113 m² gebruiksoppervlakte
  • A Energielabel A
Bovenwoning met twee zeer ruime terrassen

Beschrijving

Betreed het perfecte plaatje van huiselijk geluk in deze toffe bovenwoning gelegen in het centrum van Bergen op Zoom! Dit ruime en stijlvolle appartement beschikt over maar liefst 2 (!) verdiepingen en biedt de perfecte combinatie tussen alle voorzieningen binnen handbereik en een rustige thuisbasis.

Stel je voor: na een drukke dag heerlijk ontspannen met een goed boek en een glas wijn op 1 van de 2 heerlijke dakterrassen. Herinneringen maken met gezin, vrienden of familie in de sfeervolle woonkamer, terwijl in de keuken heerlijke hapjes worden bereid. Klinkt als een sprookje, nietwaar? Een sprookje dat werkelijkheid kan worden!

HIGHLIGHTS
• Say yes to this address! Op een centrale plek dichtbij alle benodigde voorzieningen, maar toch met veel privacy.
• Aan ruimte geen gebrek! Het appartement beschikt over drie ruime slaapkamers, al een indeling in gedachten? Kantoor aan huis, hobbykamer of gewoon lekker veel logeerruimte? Wij zijn benieuwd!
• Dubbel genieten: niet één, maar twee royale dakterrassen waar elke dag optimaal genoten kan worden van het buitenleven.
• De bovenwoning beschikt over een moderne badkamer uit 2024! Dit is de perfecte plek om de dag te beginnen of juist om af te sluiten.
• Zin in een kop koffie, een smakelijke lunch of de nieuwste modetrends shoppen? Het kan allemaal! Stap de deur uit en ontdek het bruisende centrum van Bergen op Zoom.
• Geniet van ruimte in het centrum! Wij bieden een woonoppervlakte van ca. 113 m², gebouw gebonden buitenruimte van ca. 52m², externe bergruimte van ca. 5 m² en een inhoud van 373 m³.

Jullie wonen nu in omgeving Bergen op Zoom of misschien wel in Groot Rijnmond of omgeving Breda. Jullie willen daar niets missen, maar willen toch wat meer rust en een luxer woongenot. Dan is dit jullie nieuwe woning! De woning bevindt zicht midden in het stadscentrum nabij supermarkten, het park de "Kijk in de pot" en de boulevard met diverse horeca.

Bijzonderheden:
- Zie o.a. de door verkoper ingevulde Vragenlijst en Lijst van Zaken in de dataroom van Eerlijk Bieden, de directe link naar de dataroom staat achter in de brochure.
- Het object dient nog te worden gesplitst in twee appartementsrechten. Dit is reeds in gang gezet en zal worden toegevoegd aan de dataroom van Eerlijk Bieden bij gereedheid.
- De eigenaar van de winkel (Sint-Josephstraat 45) is ook eigenaar van het parkeerterrein aan de achterijde;
- De eigenaar van de bovenwoning (Sint-Josephstraat 45a) krijgt een recht van overpad via het parkeerterrein aan de achterzijde ivm toegang tot berging en entree naar de bovenwoning;
- De eigenaar van de bovenwoning (Sint-Josephstraat 45a) krijgt het recht voor het parkeren van 1 personenauto, op de daarvoor aangegeven locatie.

INDELING
BEGANE GROND
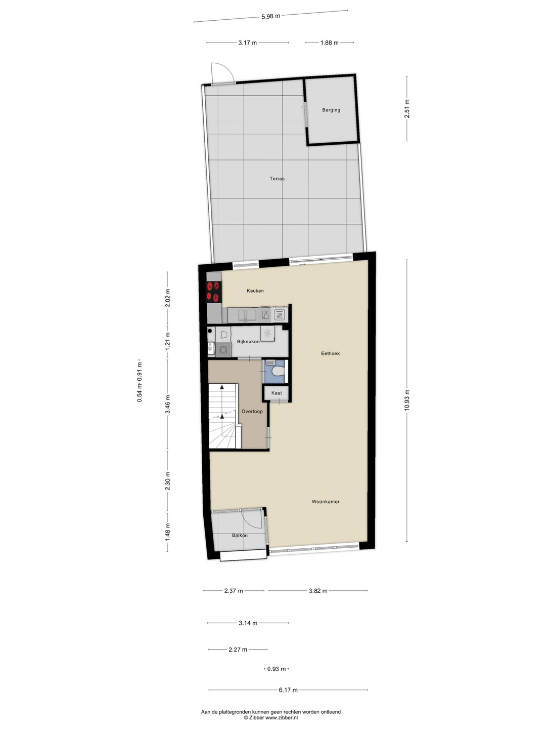
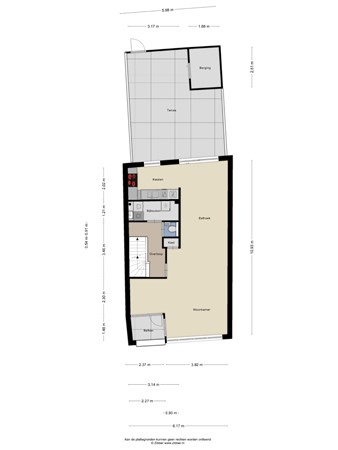
Gelegen in het bruisende centrum van Bergen op Zoom, biedt deze bovenwoning het beste van twee werelden: de rust en privacy, gecombineerd met de levendigheid van de stad. Jullie komen aan in de gezellige winkelstraat van Bergen op Zoom en lopen middels de voordeur de woning binnen. De entree is afgewerkt met een betegelde vloer, gestucte wanden en plafondplaten. De entree biedt toegang tot de meterkast, garderobe en vaste trapopgang naar de eerste verdieping.

1e VERDIEPING
Middels de vaste trap op de begane grond bereiken jullie de overloop op de eerste verdieping. De overloop is afgewerkt met een betegelde vloer, gestucte wanden en een gestuct plafond. De overloop biedt toegang tot de wasruimte (met aansluiting witgoed en CV-Ketel (Atag, 2023), betegeld toilet met fonteintje, woonkamer en tweede verdieping middels een vaste trapopgang.

De woonkamer is de ideale plek om te ontspannen, films te kijken of bij te kletsen met vrienden en familie. De woonkamer is afgewerkt met een betegelde vloer, gestucte wanden en een gestuct plafond. De woonkamer biedt toegang tot de half open keuken, het balkon en het dakterras.

Het balkon is de ideale plek om 's ochtends heerlijk wakker te worden met een vers kopje koffie of 's avonds tot rust te komen met een goed boek en een glas wijn.

Hier kunnen jullie heerlijke recepten bereiden! De half open keuken is afgewerkt met een betegelde vloer, gestucte wanden en een gestuct plafond. De in hoek opgestelde keukeninrichting is voorzien van onder- en bovenkastjes, koelkast, oven, elektrische kookplaat, afzuigkap, vaatwasser en spoelbak.

Wakker worden met de zon! Dankzij het dakterras op het oosten geniet je ’s ochtends van de eerste zonnestralen: de perfecte plek voor je ontbijt of een kop koffie in alle rust. Het dakterras is gelegen op het Oosten en beschikt over een achterom.

2e VERDIEPING
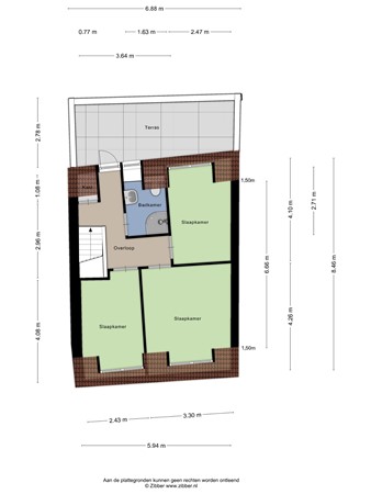
Middels de vaste trap op de eerste verdieping bereiken jullie de overloop op de tweede verdieping. De overloop is afgewerkt met een betegelde vloer, gestucte wanden en een gestuct plafond. De overloop biedt toegang tot het tweede dakterras, 3 slaapkamers en de moderne badkamer.

Slaapkamer 1 is afgewerkt met een laminaat vloer, gestucte wanden en een gestuct plafond. De slaapkamer is voorzien van een dakkapel.

Slaapkamer 2 is afgewerkt met een laminaat vloer, gestucte wanden en een gestuct plafond. De slaapkamer is voorzien van een dakkapel.

Slaapkamer 3 is afgewerkt met een laminaat vloer, gestucte wanden en een gestuct plafond. De slaapkamer is voorzien van een dakkapel.

In de moderne badkamer uit 2024 kunnen jullie na een lange dag heerlijk tot rust komen. De moderne badkamer is afgewerkt met een betegelde vloer, betegelde wanden en een gestuct plafond. De badkamer is voorzien van een wastafel, 2e toilet douche, design radiator en een dakkapel.

De bovenwoning beschikt over een handige berging op het achtergelegen terrein. Op dit terrein bevindt zich tevens de gedeelde parkeergelegenheid, met ruimte voor één auto die bij het appartement hoort.
_______________

Het lijkt ons dus overduidelijk dat deze bovenwoning zeer beslist een bezichtiging waard is!
Zien is geloven dus druk op de knop en neem contact met ons op.

Het meetwerk is gebaseerd op de NEN2580. De Meetinstructie is bedoeld om een meer eenduidige manier van meten toe te passen voor het geven van een indicatie van de gebruiksoppervlakte. De Meetinstructie sluit verschillen in meetuitkomsten niet volledig uit, door bijvoorbeeld interpretatieverschillen, afrondingen of beperkingen bij het uitvoeren van de meting.

ALGEMEEN
Bezichtiging uitsluitend via ons kantoor. Deze informatie is geheel vrijblijvend, uitsluitend voor geadresseerde bestemd en niet bedoeld als aanbod. Ten aanzien van de juistheid van de vermelde informatie kan door makelaarskantoor Buuron & Kuipers Makelaars Taxateurs B.V. geen aansprakelijkheid worden aanvaard, noch kan aan de vermelde informatie enig recht worden ontleend.

Kaart

Kenmerken

Overdracht

Referentienummer
3205
Vraagprijs
€ 399.000,- k.k.
Status
Nieuw in verkoop
Aanvaarding
In overleg
Aangeboden sinds
Donderdag 23 oktober 2025
Laatste wijziging
Woensdag 5 november 2025

Bouw

Type object
Appartement, bovenwoning
Woonlaag
2e woonlaag
Soort bouw
Bestaande bouw
Bouwperiode
2001
Dakbedekking
Bitumen
Dakpannen
Type dak
Zadeldak
Isolatievormen
Dakisolatie
Dubbel glas
HR-glas
Muurisolatie

Oppervlaktes en inhoud

Woonoppervlakte
113 m²
Inhoud
373 m³
Oppervlakte externe bergruimte
5 m²
Oppervlakte gebouwgebonden buitenruimte
52 m²

Indeling

Aantal bouwlagen
2
Aantal kamers
4 (waarvan 3 slaapkamers)
Aantal badkamers
1 (en 1 apart toilet)

Locatie

Ligging
Dichtbij openbaar vervoer
In centrum
Nabij school
Nabij snelweg

Tuin

Type
Zonneterras
Hoofdtuin
Ja
Oriëntering
Oosten
Heeft een achterom
Ja
Staat
Normaal
Tuin 2 - Type
Zonneterras
Tuin 2 - Oriëntering
Oosten

Energieverbruik

Energielabel
A

CV ketel

CV ketel
Atag
Warmtebron
Gas
Bouwjaar
2023
Combiketel
Ja
Eigendom
Eigendom

Uitrusting

Aantal parkeerplaatsen
1
Warm water
CV-ketel
Verwarmingssysteem
Centrale verwarming
Ventilatie methode
Natuurlijke ventilatie
Badkamervoorzieningen
Douche
Toilet
Wastafel
Heeft een balkon
Ja
Heeft kabel-tv
Ja
Tuin aanwezig
Ja
Heeft schuur/berging
Ja

Kadastrale gegevens

Kadastrale aanduiding
Bergen op Zoom H 713
Omvang
Deel perceel

Media

Video

Virtuele tour

Plattegronden

Brochure(s) en overige bijlagen

BuuronKuipers.Brochure.Sint-Josephstraat 45A.BergenopZoom..pdf Download