Verkocht onder voorbehoud:Edisonstraat 56, 4702 ND Roosendaal - Foto
Verkocht onder voorbehoud
+44

Edisonstraat 56 4702 ND Roosendaal € 320.000,- k.k.

  • Woonhuis
  • 5 kamers
  • 4 slaapkamers
  • 1 badkamer
  • Bouwjaar 1948
  • 198 m² perceeloppervlakte
  • 109 m² gebruiksoppervlakte
  • E Energielabel E
Sfeervolle tussenwoning met mogelijkheid gelijkvloers wonen!

Beschrijving

Welkom in jullie droomhuis! Stap binnen en laat je verrassen: licht dat binnenstroomt, een ruimte die voelt als thuis, alle plek om te ontspannen, koken én genieten. Voel de zon op je gezicht in de tuin op het zuiden, ontdek de slimme indeling die ook gelijkvloers wonen mogelijk maakt en droom even weg in die gezellige woonkamer. Hier begint jullie volgende hoofdstuk, klaar om te ervaren?

HIGHLIGHTS
• Perfecte mix tussen rustige thuisbasis en alle voorzieningen binnen handbereik!
• Licht doet een mens goed en dan met name natuurlijk licht, kom met ons in de woonkamer staan en geniet van licht dankzij de riante raampartijen en de lichtkoepel.
• Door de indeling op de begane grond zien wij tevens mogelijkheden voor gelijkvloers wonen.
• Bakkers klaar? Bakken maar! In deze riante keuken kan je als hobbykok direct aan de slag gaan!
• Meer zon, minder zorgen! Deze onderhoudsvriendelijke tuin, gelegen op het gunstige Zuiden, nodigt uit om van de zon te genieten.
• Extra bergruimte nodig voor jullie uit de hand gelopen hobby of voor de fietsen? Check! De woning beschikt over een riante stenen berging.
• Aan ruimte geen gebrek! Wij bieden een woonoppervlakte van ca. 109 m², gebouw gebonden buitenruimte van ca. 7 m², overige inpandige ruimte van ca. 8 m², externe bergruimte van ca. 9 m² en een inhoud van ca. 454 m³

Bijzonderheden:
- Zie o.a. de door verkoper ingevulde Vragenlijst en Lijst van Zaken in de dataroom van Eerlijk Bieden.
- De woning is voorzien van kunststof kozijnen met HR++ beglazing uit 2025.

Jullie wonen nu in Roosendaal of misschien wel in Groot Rijnmond of omgeving Breda maar willen daar niets missen en willen toch wat meer rust en een luxer woongenot. Dan is dit jullie nieuwe woning!

Roosendaal is een bourgondische stad in West-Brabant waar jullie de drukte van de stad, maar ook de rust van de natuur kunnen ervaren. Het gezellige centrum bruist van diverse horecagelegenheden, maar ook beschikt Roosendaal over voldoende winkels en zelf een Designer Outlet 'Rosada'. Ook voor natuurliefhebbers is Roosendaal een geschikte plek, het park 'Vrouwenhof' is een plek waar jullie kunnen wandelen, picknicken en genieten van de rust. Ook zijn er diverse wandel- en fietsroutes in en rondom de stad.

INDELING
BEGANE GROND
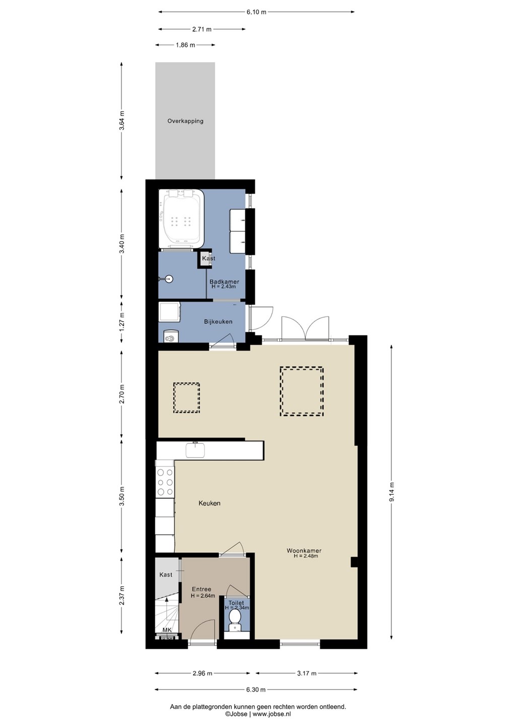
Jullie komen aan bij de woning, parkeren de auto en lopen middels de voortuin naar binnen. De entree is afgewerkt met een betegelde vloer, schoonmetselwerk wanden en een gestuct plafond. De hal c.q. entree biedt toegang tot het betegelde toilet met fonteintje, meterkast, woonkamer, woonkeuken en eerste verdieping middels een vaste trapopgang met trapkast.

Plof in de woonkamer neer op de bank om je favoriete serie te kijken of organiseer een leuk etentje met vrienden of familie! De woonkamer is afgewerkt met een betegelde vloer, deels gestucte en deels schoonmetselwerk wanden en een gestuct plafond met inbouwverlichting. In de aanbouw van de woning is de vloer voorzien van vloerverwarming. De aanbouw is voorzien van een lichtkoepel en airconditioning. Vanuit hier is er tevens toegang tot de hal/bijkeuken en de achtertuin.

Wauw! Deze royale keuken nodigt uit om direct de mouwen op te stropen en de lekkerste gerechten te bereiden! De open woonkeuken is afgewerkt met een betegelde vloer, deels betegeld en deels gestucte wanden en een gestuct plafond met inbouwverlichting. De in hoek opgestelde keukeninrichting is voorzien van onder- en bovenkastje, dubbele spoelbak, koel-vriescombi, gasfornuis met oven, afzuigkap en vaatwasser.

De bijkeuken is voorzien van de CV-Ketel, aansluiting wasmachine en droger en biedt toegang tot de badkamer en de achtertuin.

De badkamer is afgewerkt met een betegelde vloer, betegelde wanden en een gestuct plafond met inbouwverlichting. De badkamer is voorzien van een jacuzzi, riante inloopdouche, dubbel wastafelmeubel en natuurlijke ventilatie.

1e VERDIEPING
Middels de vaste trap op de begane grond bereiken jullie de overloop op de eerste verdieping. De overloop is afgewerkt met een laminaatvloer, gestucte wanden en een gestuct plafond. De overloop biedt toegang tot 3 slaapkamers, badkamer en riante bergzolder middels een vlizotrap.

Slaapkamer 1 is afgewerkt met een laminaatvloer, gestucte wanden en een gestuct plafond. De slaapkamer is voorzien van airconditioning en een met de hand bedienbaar rolluik.

Slaapkamer 2 is afgewerkt met een laminaatvloer, deels gestuct en deels behangen wanden en een gestuct plafond. De slaapkamer is voorzien van een met de hand bedienbaar rolluik.

Slaapkamer 3 is afgewerkt met een laminaatvloer, deels gestuct en deels behangen wanden en een gestuct plafond. De slaapkamer is voorzien van een met de hand bedienbaar rolluik.

De badkamer is afgewerkt met een betegelde vloer, betegelde wanden en een gestuct plafond. De badkamer is voorzien van een toilet, douche en wastafel.

TUIN
De woning beschikt over een voor- en achtertuin. Extra tijd om te genieten in deze onderhoudsvriendelijke achtertuin! De achtertuin is gelegen op het zonnige Zuiden waardoor altijd optimaal genoten kan worden van het buitenleven in het zonnetje! De achtertuin is voorzien van terrastegels, achterom, overkapping en riante berging.

________________

Het lijkt ons dus overduidelijk dat deze woning zeer beslist een bezichtiging waard is!
Zien is geloven dus druk op de knop en neem contact met ons op.

Het meetwerk is gebaseerd op de NEN2580. De Meetinstructie is bedoeld om een meer eenduidige manier van meten toe te passen voor het geven van een indicatie van de gebruiksoppervlakte. De Meetinstructie sluit verschillen in meetuitkomsten niet volledig uit, door bijvoorbeeld interpretatieverschillen, afrondingen of beperkingen bij het uitvoeren van de meting.

ALGEMEEN
Bezichtiging uitsluitend via ons kantoor. Deze informatie is geheel vrijblijvend, uitsluitend voor geadresseerde bestemd en niet bedoeld als aanbod. Ten aanzien van de juistheid van de vermelde informatie kan door makelaarskantoor Buuron & Kuipers Makelaars Taxateurs B.V. geen aansprakelijkheid worden aanvaard, noch kan aan de vermelde informatie enig recht worden ontleend.

Kaart

Kenmerken

Overdracht

Referentienummer
3324
Vraagprijs
€ 320.000,- k.k.
Status
Verkocht onder voorbehoud
Aanvaarding
In overleg
Aangeboden sinds
Donderdag 12 maart 2026
Laatste wijziging
Dinsdag 7 april 2026

Bouw

Type object
Woonhuis, eengezinswoning, tussenwoning
Soort bouw
Bestaande bouw
Bouwperiode
1948
Dakbedekking
Dakpannen
Type dak
Zadeldak
Isolatievormen
Grotendeels dubbel glas

Oppervlaktes en inhoud

Perceeloppervlakte
198 m²
Woonoppervlakte
109 m²
Inhoud
454 m³
Oppervlakte overige inpandige ruimten
8 m²
Oppervlakte externe bergruimte
9 m²
Oppervlakte gebouwgebonden buitenruimte
7 m²

Indeling

Aantal bouwlagen
3
Aantal kamers
5 (waarvan 4 slaapkamers)
Aantal badkamers
1 (en 2 aparte toiletten)

Locatie

Ligging
Aan rustige weg
In woonwijk

Tuin

Type
Achtertuin
Hoofdtuin
Ja
Oriëntering
Noorden
Tuin 2 - Type
Voortuin
Tuin 2 - Oriëntering
Zuiden
Tuin 2 - Staat
Normaal

Energieverbruik

Energielabel
E

CV ketel

CV ketel
Intergas
Warmtebron
Gas
Bouwjaar
2023
Combiketel
Ja
Eigendom
Eigendom

Uitrusting

Warm water
CV-ketel
Verwarmingssysteem
Airconditioning
Centrale verwarming
Vloerverwarming (gedeeltelijk)
Ventilatie methode
Natuurlijke ventilatie
Badkamervoorzieningen
Douche
Dubbele wastafel
Jacuzzi
Wastafelmeubel
Heeft airco
Ja
Tuin aanwezig
Ja
Heeft schuur/berging
Ja

Kadastrale gegevens

Kadastrale aanduiding
Roosendaal en Nispen B 6675
Perceeloppervlakte
198 m²
Omvang
Geheel perceel
Eigendomsituatie
Eigen grond

Media

Video

Virtuele tour

Plattegronden

Brochure(s) en overige bijlagen

BuuronKuipers.Brochure.Edisonstraat56.Roosendaal.pdf Download