Beschrijving
Al tijden op zoek naar een nog te transformeren parel die jullie geheel kunnen afwerken naar eigen smaak? Dan zijn jullie hier aan het juiste adres! Deze ruime tussenwoning biedt volop mogelijkheden om een volledig eigen thuis te creëren. Gelegen op een royaal perceel van circa 205 m² combineert deze woning ruimte, potentie en een fijne ligging in een kindvriendelijke omgeving.
HIGHLIGHTS
• A je to! Buurman & Buurman opgelet. Welkom bij deze unieke kans om een droomhuis te creëren!
• Wat je ziet is wat je krijgt. Deze woning heeft alle elementen in huis om getransformeerd te worden naar een oogverblindende woongelegenheid.
• De woning is gelegen op een kindvriendelijke plek, met een school, kinderopvang en speeltuin op loopafstand.
• Motorliefhebbers, verzamelaars of hobbyisten opgelet! De woning beschikt over een ruime berging van ca. 19 m².
• De tuin is de hotspot voor het gezin, familie en vrienden! Geniet van het buitenleven onder het genot van een hapje en drankje.
• Aan ruimte geen gebrek! Wij bieden een woonoppervlakte van ca. 81 m², overige inpandige ruimte van ca. 32 m² en een inhoud van ca. 399 m³.
Bijzonderheden:
- Zie o.a. de door verkoper ingevulde Vragenlijst en Lijst van Zaken in de dataroom van Eerlijk Bieden, de directe link naar de dataroom staat achter in de brochure.
Jij/Jullie wonen nu in Steenbergen of misschien wel in Groot Rijnmond of omgeving Breda maar willen daar niets missen en willen toch wat meer rust en een luxer woongenot. Dan is dit jullie nieuwe woning! Op korte afstand bevindt zich het stadscentrum, de levendige jachthaven, supermarkten, het stadspark en diverse horeca.
Steenbergen is namelijk een gezellig stadje en is rijk aan restaurants, eetcafés en andere horecagelegenheden. Tevens zijn er vele sport- en recreatieactiviteiten aanwezig en biedt Steenbergen alle winkels die jullie maar nodig hebben. Ook willen jullie een rustieke woonomgeving ervaren met de luxe van een snelle verbinding door de A4 richting o.a. Rotterdam, Breda en Antwerpen. De idyllische loop en fietsroutes rondom Steenbergen en richting Zeeland zorgen voor een kijkje in het prachtige West-Brabantse landschap.
INDELING
Jullie komen aan in de kindvriendelijke woonwijk, parkeren de auto en lopen middels de fraai aangelegde voortuin de woning binnen. De entree is afgewerkt met een betegelde vloer, sierpleister wanden met houten lambrisering en een houten schrootjes plafond. De entree biedt toegang tot het betegelde toilet met fonteintje, woonkamer, keuken en eerste verdieping middels een vaste trapopgang.
Geniet van lekker veel lichtinval door de riante raampartijen. De doorzonwoonkamer is afgewerkt met een betegelde vloer, spachtelputz wanden en houten plafond.
Ontwerp jullie eigen keuken in deze woning, waar heerlijke hapjes worden gemaakt en culinaire dromen werkelijkheid worden. De gesloten keuken is afgewerkt met een betegelde vloer, betegelde wanden en een kunststof panelen plafond. De recht opgestelde keukeninrichting is voorzien van onder- en bovenkastjes, gasfornuis, afzuigkap en spoelbak. De keuken biedt toegang tot de bijkeuken.
De bijkeuken is voorzien van een wastafel, aansluiting voor wasmachine en droger, douche en biedt toegang tot de achtertuin middels een openslaande tuindeur.
De riante tuin achter de woning is een waar paradijs voor buitenliefhebbers! Of je nu een gezellige barbecue wilt organiseren met vrienden, een speelparadijs voor de kinderen wilt creëren of gewoon wilt genieten van de rust in je eigen groene oase, deze tuin biedt eindeloze mogelijkheden.
De aangebouwde berging biedt volop mogelijkheden om jouw droomruimte te creëren! Of je nu op zoek bent naar een mancave, een creatieve werkplek aan huis, of zelfs een ruimte voor levensloopbestendig wonen, hier kun je echt alle kanten op.
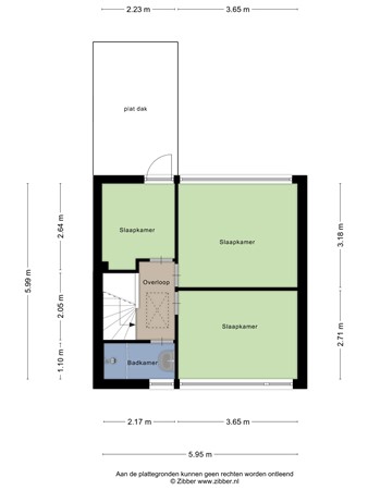
1e VERDIEPING
Middels de vaste trap op de begane grond bereiken jullie de overloop op de eerste verdieping. De overloop is afgewerkt met een parketvloer, spachtelputz wanden en plafondpanelen. De overloop biedt toegang tot 3 slaapkamers, badkamer en tweede verdieping middels een vlizotrap.
Slaapkamer 1 is afgewerkt met een parketvloer, spachtelputz wanden en plafondpanelen.
Slaapkamer 2 is afgewerkt met een parketvloer, spachtelputz wanden en plafondpanelen.
Slaapkamer 3 is afgewerkt met een parketvloer, spachtelputz wanden en plafondpanelen. De slaapkamer biedt toegang tot het platte dak.
De badkamer is afgewerkt met een betegelde vloer, betegelde wanden en een gestuct plafond. De badkamer is voorzien van een douche en wastafel.
2e VERDIEPING
Middels de vlizotrap bereiken jullie de voorzolder op de tweede verdieping die beschikt over de CV-Ketel. Deze verdieping biedt volop mogelijkheden voor uitbreiding. Met het realiseren van een vaste trap en het verder afwerken van de ruimte, kunnen jullie hier eenvoudig een extra slaapkamer, werkkamer of hobbyruimte creëren.
___________________
Het lijkt ons dus overduidelijk dat deze woning zeer beslist een bezichtiging waard is!
Zien is geloven dus druk op de knop en neem contact met ons op.
Het meetwerk is gebaseerd op de NEN2580. De Meetinstructie is bedoeld om een meer eenduidige manier van meten toe te passen voor het geven van een indicatie van de gebruiksoppervlakte. De Meetinstructie sluit verschillen in meetuitkomsten niet volledig uit, door bijvoorbeeld interpretatieverschillen, afrondingen of beperkingen bij het uitvoeren van de meting.
ALGEMEEN
Bezichtiging uitsluitend via ons kantoor. Deze informatie is geheel vrijblijvend, uitsluitend voor geadresseerde bestemd en niet bedoeld als aanbod. Ten aanzien van de juistheid van de vermelde informatie kan door makelaarskantoor Buuron & Kuipers Makelaars Taxateurs B.V. geen aansprakelijkheid worden aanvaard, noch kan aan de vermelde informatie enig recht worden ontleend.