Nieuw in verkoop:Franseweg 57B, 4651 GE Steenbergen - Foto
Nieuw in verkoop
+74

Franseweg 57B 4651 GE Steenbergen € 799.000,- k.k.

  • Woonhuis
  • 6 kamers
  • 5 slaapkamers
  • 1 badkamers
  • Bouwjaar 2004
  • 543 m² perceeloppervlakte
  • 197 m² gebruiksoppervlakte
  • A Energielabel A
Luxe wonen met ruimte, rust, label A en alles binnen handbereik!

Beschrijving

Wonen met allure, ruimte en rust.. een droomhuis in het bruisende Steenbergen!

Stel jullie eens voor: thuiskomen in een woning (energielabel A) waar alles klopt. Waar rust, ruimte en comfort naadloos samenkomen met de levendigheid en voorzieningen van een gezellig stadje. Deze royale en uitstekend onderhouden woning, gelegen op een ruim perceel van 543 m² in Steenbergen, biedt precies dat en meer. Hier genieten jullie elke dag van een luxe leefomgeving, een indrukwekkende tuin en volop ruimte voor het hele gezin, nu én in de toekomst.

HIGLIGHTS
• Perfecte mix tussen rustige thuisbasis en alle voorzieningen binnen handbereik!
• Affiniteit met duurzaamheid? Deze woning beschikt over een energielabel A.
• De moderne keuken is een echte eyecatcher, uitgerust met luxe apparatuur en veel werkruimte waardoor koken hier elke dag een plezier is.
• Vergeet een zonnige vakantie in het buitenland! In deze prachtige tuin op het Westen kan optimaal genoten worden van het buitenleven.
• Ruimte in overvloed met maar liefst vijf slaapkamers! Perfect voor een groot gezin, thuiswerken of logés.
• Hebben jullie een camper, caravan of meerdere auto's die veilig geparkeerd moeten worden? Check! De riante oprit met laadpaal (11kW) is hiervoor de perfecte plek!
• Gelijkvloers wonen, kantoor aan huis of een garage voor de auto, motor of opslag? Door de flexibele indeling op de begane grond biedt deze woning een tal aan mogelijkheden!
• Goede bereikbaarheid? Check! Door de bushalte in de buurt kun je alle kanten op.
• Stijlvolle inrichting en hoogwaardige afwerking! De woning is met zorg onderhouden en modern afgewerkt, waardoor jullie hier direct kunnen intrekken en genieten.
• Aan ruimte geen gebrek! Wij bieden een woonoppervlakte van ca. 197 m², externe bergruimte van ca. 21 m² en een inhoud van ca. 804 m³.

Bijzonderheden:
- Zie o.a. de door verkoper ingevulde Vragenlijst en Lijst van Zaken in de dataroom van Eerlijk Bieden, de directe link naar de dataroom staat achter in de brochure.

Jullie wonen nu in Steenbergen of misschien wel in Groot Rijnmond of omgeving Breda. Jullie willen daar niets missen, maar willen toch wat meer rust en een luxer woongenot. Dan is dit jullie nieuwe woning! Op loopafstand bevindt zich het stadscentrum, de levendige jachthaven, supermarkten, het stadspark en diverse horeca.

Steenbergen is namelijk een gezellig stadje en is rijk aan restaurants, eetcafés en andere horecagelegenheden. Tevens zijn er vele sport- en recreatieactiviteiten aanwezig en biedt Steenbergen alle winkels die jullie maar nodig hebben. Ook willen jullie een rustieke woonomgeving ervaren. De idyllische loop en fietsroutes rondom Steenbergen en richting Zeeland zorgen voor een kijkje in het prachtige West-Brabantse landschap. Steenbergen heeft een snelle verbinding met o.a. Bergen op Zoom, Breda, Rotterdam en Antwerpen.

INDELING
BEGANE GROND (voorzien van vloerverwarming)
Jullie komen aan bij de woning en parkeren de auto op de oprit voorzien van een laadpaal. Middels de fraaie voortuin komen jullie de woning binnen. De entree is afgewerkt met een betegelde vloer, gestucte wanden en een gestuct plafond. De entree biedt toegang tot de woonkamer, keuken, betegeld toilet met fonteintje, meterkast, trapkast en de eerst verdieping middels een vaste trapopgang.

Een zee aan lichtinval! De erker in de woonkamer zorgt voor extra licht en ruimte. De woonkamer is afgewerkt met een betegelde vloer, deels behangen en deels gestucte wanden en een gestuct plafond. De modern afgewerkte living biedt toegang tot de eetkamer en de moderne keuken.

De eetkamer is perfect voor gezellige diners, met grote raampartijen die veel licht binnenlaten en een prachtig uitzicht op de tuin.

De zithoek is dé plek om samen te komen, waar je heerlijk kunt ontspannen met een drankje, terwijl het sfeervolle interieur en het natuurlijke licht zorgen voor een warme en uitnodigende sfeer.

Culinaire droomplek! In deze prachtige keuken is koken elke dag een feestje. De moderne open keuken is afgewerkt met een betegelde vloer, deels behangen en deels gestucte wanden en een gestuct plafond. De in U-vorm opgestelde keuken is voorzien van een keramieken keukenblad, onder- en bovenkastjes, 2 spoelbakken ( 1 voorzien van een Quooker en 1 voorzien van een CUBE), vaatwasser, combi-stoomoven en een inductie kookplaat met afzuiging (BORA). Vanuit de keuken is er toegang tot de bijkeuken.

De bijkeuken is afgewerkt met een betegelde vloer, gestucte wanden en een gestuct plafond. De bijkeuken is voorzien van de aansluiting voor witgoed, CV-ketel (2004), omvormer t.b.v. de zonnepanelen en elektrisch rolluik. Vanuit de bijkeuken is er toegang tot de eerste slaapkamer en de achtertuin.

1e VERDIEPING
Middels de vaste trap op de begane grond bereiken jullie de overloop op de eerste verdieping. De overloop is afgewerkt met een laminaat vloer, stucwerk wanden en een spuitwerk plafond. De overloop biedt toegang tot drie slaapkamers, de badkamer, separaat toilet en tweede verdieping middels een vaste trapopgang.

Slaapkamer 2 is afgewerkt met een laminaat vloer, deels behangen en deels gestucte wanden en een gestuct plafond.

Slaapkamer 3 is afgewerkt met een laminaat vloer, gestucte wanden en een gestuct plafond.

Slaapkamer 4 is afgewerkt met een laminaat vloer, gestucte wanden en een gestuct plafond.

Een moment voor jezelf! Geniet van een warm bad en laad op in alle rust en comfort. De badkamer is afgewerkt met een betegelde vloer, betegelde wanden en een kunststof plafond. De badkamer is voorzien van een whirlpool, douche, dubbele wastafel, vloerverwarming en zowel natuurlijke- als mechanische ventilatie.

Separaat toilet is afgewerkt met een betegelde vloer en wanden en een stucwerk plafond.

2e VERDIEPING
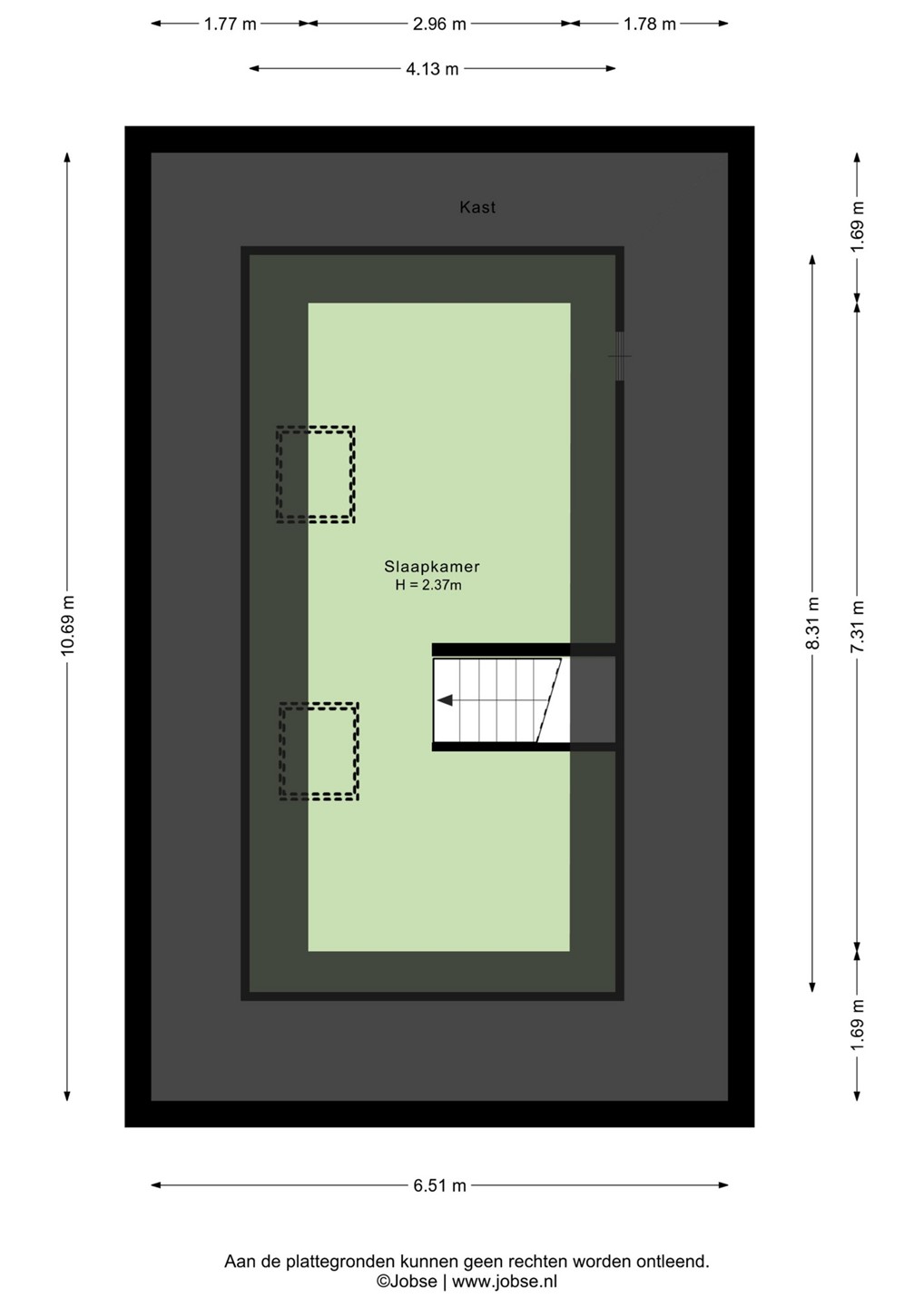
Middels de vaste trap op de eerste verdieping bereiken jullie de slaapkamer op de tweede verdieping. De slaapkamer is afgewerkt met een laminaat vloer, spuitwerk wanden en spuitwerk plafond. Vanuit hier is er toegang tot de technische ruimte met WTW-systeem. De slaapkamer is voorzien van bergruimte dat onder de kap doorloopt en 2 Velux dakramen.

TUIN
Zijn jullie op zoek naar een riante tuin waar jullie tijdens alle seizoenen optimaal kunnen genieten van het buitenleven? Check! De woning beschikt over een voor- zij- en achtertuin. Jullie zijn bourgondisch ingesteld en dat past goed bij deze achtertuin die beschikt over diverse gezellige zitplekken voor ieder moment van de dag. De achtertuin is voorzien van sierbestrating, terras, gazon, vijver en schuur.

____________________________________

Het lijkt ons dus overduidelijk dat deze woning zeer beslist een bezichtiging waard is!
Zien is geloven dus druk op de knop en neem contact met ons op.

Het meetwerk is gebaseerd op de NEN2580. De Meetinstructie is bedoeld om een meer eenduidige manier van meten toe te passen voor het geven van een indicatie van de gebruiksoppervlakte. De Meetinstructie sluit verschillen in meetuitkomsten niet volledig uit, door bijvoorbeeld interpretatieverschillen, afrondingen of beperkingen bij het uitvoeren van de meting.

ALGEMEEN
Bezichtiging uitsluitend via ons kantoor. Deze informatie is geheel vrijblijvend, uitsluitend voor geadresseerde bestemd en niet bedoeld als aanbod. Ten aanzien van de juistheid van de vermelde informatie kan door makelaarskantoor Buuron & Kuipers Makelaars Taxateurs B.V. geen aansprakelijkheid worden aanvaard, noch kan aan de vermelde informatie enig recht worden ontleend.

Kaart

Kenmerken

Overdracht

Referentienummer
3276
Vraagprijs
€ 799.000,- k.k.
Status
Nieuw in verkoop
Aanvaarding
In overleg
Aangeboden sinds
Woensdag 25 februari 2026
Laatste wijziging
Maandag 9 maart 2026

Bouw

Type object
Woonhuis, eengezinswoning, vrijstaande woning
Soort bouw
Bestaande bouw
Bouwperiode
2004
Dakbedekking
Dakpannen
Type dak
Schilddak
Isolatievormen
Dakisolatie
Dubbel glas
Muurisolatie
Vloerisolatie

Oppervlaktes en inhoud

Perceeloppervlakte
543 m²
Woonoppervlakte
197 m²
Inhoud
804 m³
Oppervlakte externe bergruimte
21 m²

Indeling

Aantal bouwlagen
3
Aantal kamers
6 (waarvan 5 slaapkamers)
Aantal badkamers
1 (en 2 aparte toiletten)

Locatie

Ligging
Dichtbij openbaar vervoer
Nabij school

Tuin

Type
Achtertuin
Hoofdtuin
Ja
Oriëntering
West
Heeft een achterom
Ja
Staat
Prachtig aangelegd

Energieverbruik

Energielabel
A

CV ketel

CV ketel
NEFIT
Warmtebron
Gas
Bouwjaar
2004
Combiketel
Ja
Eigendom
Eigendom

Uitrusting

Aantal parkeerplaatsen
3
Warm water
CV-ketel
Verwarmingssysteem
Centrale verwarming
Vloerverwarming (gedeeltelijk)
Ventilatie methode
Mechanische ventilatie
Natuurlijke ventilatie
Badkamervoorzieningen
Douche
Dubbele wastafel
Ligbad
Wastafelmeubel
Parkeergelegenheid
Inpandige garage
Tuin aanwezig
Ja
Heeft een garage
Ja
Heeft schuur/berging
Ja
Heeft een dakraam
Ja
Heeft zonnepanelen
Ja
Heeft ventilatie
Ja

Kadastrale gegevens

Kadastrale aanduiding
Steenbergen Y 1374
Perceeloppervlakte
543 m²
Omvang
Geheel perceel
Eigendomsituatie
Eigen grond

Media

Video

Virtuele tour

Plattegronden

Brochure(s) en overige bijlagen

BuuronKuipers.Brochure.Franseweg57B.Steenbergen-.pdf Download