Verkocht onder voorbehoud:Henegouwen 4, 4651 JA Steenbergen - Foto
Verkocht onder voorbehoud
+58

Henegouwen 4 4651 JA Steenbergen € 749.000,- k.k.

  • Woonhuis
  • 5 kamers
  • 3 slaapkamers
  • 2 badkamers
  • Bouwjaar 1974
  • 627 m² perceeloppervlakte
  • 160 m² gebruiksoppervlakte
  • B Energielabel B
Vrijstaand, energiezuinig & levensloopbestendig wonen vol rust en comfort.

Beschrijving

Gelegen in een rustige woonwijk combineert deze vrijstaande woning het comfort van vandaag met het gevoel van tijdloze charme en rust. Een plek om te leven, te dromen én te blijven. Op een ruim perceel van 627 m² biedt deze vrijstaande woning alles wat er op het woonwensenlijstje staat! Met een slaapkamer en badkamer op de begane grond, vijf airco’s (2022) en 20 zonnepanelen, is deze levensloopbestendige woning energiezuinig en comfortabel voor alle seizoenen.

HIGHLIGHTS
• Ruimte, Rust & Comfort. Check! Deze woning is ideaal voor mensen met niet alleen groene vingers, maar ook een groen hart.
• Gelijkvloers (levensloopbestendig) wonen, check! Dankzij de ruime slaapkamer en stijlvolle badkamer beneden is dit huis helemaal klaar voor nu én de toekomst.
• Vergeet een vakantie in het buitenland! In deze prachtige tuin kunnen jullie met het gezin, de familie en vrienden heerlijk genieten van de zon, onder het genot van een hapje en een drankje.
• De garage is voorzien van elektra én een elektrische kanteldeur met afstandsbediening. Ideaal voor de auto, fietsen, klusprojecten of als extra bergruimte.
• Duurzaam wonen? Natuurlijk! De woning is voorzien van 20 zonnepanelen en een aansluiting voor een elektrische auto.
• Met maar liefst vijf airco-units (uit 2022) en een gezellige houtkachel in de woonkamer, zitten jullie hier altijd goed. Zomers lekker koel en ’s winters genieten van het knisperend vuur met een warme mok chocolademelk.
• Aan ruimte geen gebrek! Wij bieden een woonoppervlakte van ca. 160 m², externe bergruimte van ca. 25 m² en inhoud van ca. 598 m³.
• Geen zin muggen of vliegen binnen? Alle openslaande ramen zijn voorzien van horren.

Bijzonderheden:
- Zie o.a. de door verkoper ingevulde Vragenlijst en Lijst van Zaken in de dataroom van Eerlijk Bieden, de directe link naar de dataroom staat achter in de brochure.

Jullie wonen nu in Steenbergen of misschien wel in Groot Rijnmond of omgeving Breda. Jullie willen daar niets missen, maar willen toch wat meer rust en een luxer woongenot. Dan is dit jullie nieuwe woning! Op loopafstand bevindt zich het stadscentrum, de levendige jachthaven, supermarkten, het stadspark en diverse horeca.

Steenbergen is namelijk een gezellig stadje en is rijk aan restaurants, eetcafés en andere horecagelegenheden. Tevens zijn er vele sport- en recreatieactiviteiten aanwezig en biedt Steenbergen alle winkels die jullie maar nodig hebben. Ook willen jullie een rustieke woonomgeving ervaren. De idyllische loop en fietsroutes rondom Steenbergen en richting Zeeland zorgen voor een kijkje in het prachtige West-Brabantse landschap. Steenbergen heeft een snelle verbinding met o.a. Bergen op Zoom, Breda, Rotterdam en Antwerpen.

INDELING
BEGANE GROND
Aangekomen in deze rustige woonwijk voelen jullie direct een gevoel van rust. Jullie parkeren de auto op de oprit en lopen middels de fraai aangelegde voortuin de woning binnen. De royale entree is afgewerkt met een PVC laminaat vloer, spachtelputz wanden en plafondplaten. De entree biedt toegang tot de woonkamer, meterkast, garderobe, separaat toilet met fonteintje, bergkast, slaapkamer, badkamer en de eerste verdieping middels een vaste trapopgang.

Stel jullie voor: tijdens koude winteravonden genieten jullie van de heerlijke warmte die de knisperende houtkachel in de woonkamer biedt! De woonkamer is afgewerkt met een houten vloer, spachtelputz wanden en houten balken plafond. De woonkamer is voorzien van een openhaard, airconditioning (2022) en handmatig rolluik aan de achterzijde. In de aanbouw is tevens airconditioning (2022) aanwezig alsmede een handmatig rolluik.

De open keuken is niet alleen praktisch, maar ook een gezellige ontmoetingsplek. Koken, borrelen, kletsen: alles kan hier! De open keuken is afgewerkt met een betegelde vloer, spachtelputz wanden en een gestuct plafond. De recht opgestelde keukeninrichting, met eilandstructuur, is voorzien van een inductie kookplaat, afzuigkap, oven, combi-magnetron en spoeleiland met spoelbak, vaatwasser en diverse kastruimte. De keuken is voorzien van een elektrisch rolluik en biedt toegang tot de bijkeuken.

De bijkeuken is afgewerkt met een betegelde vloer, betegelde wanden en een gestuct plafond. De bijkeuken is voorzien van de aansluiting voor wasmachine en droger en biedt toegang tot de achtertuin middels een openslaande tuindeur.

Ervaar het gemak van gelijkvloers wonen! De woning is voorzien van een slaapkamer én badkamer op de begane grond.

Slaapkamer 1 is afgewerkt met een PVC laminaat vloer, gesauste wanden en een gestuct plafond. De slaapkamer is voorzien van een inbouwkast, airconditioning (2022) en een handmatig rolluik.

De riante badkamer is afgewerkt met een betegelde vloer, betegelde wanden en een gestuct plafond. De badkamer is voorzien van een ruime inloopdouche, 2e toilet, vloerverwarming, natuurlijke- en mechanische ventilatie, wastafelmeubel en een elektrisch rolluik.

De prachtig aangelegde tuin rondom de woning is een waar paradijs voor rustzoekers, zonliefhebbers en tuinliefhebbers. De woning beschikt over een riante tuin rondom. De parkachtige achtertuin is voorzien van een terras, sierbestrating, gazon, pergola, buitenverlichting, buitenstopcontacten, buitenkraan.

De vrijstaande garage is van alle gemakken voorzien en biedt volop mogelijkheden. Uitgerust met elektra, een elektrische kanteldeur met afstandsbediening én een praktische vliering, is dit niet alleen een veilige plek voor de auto, maar ook perfect als werkruimte, opslag of hobbyruimte.

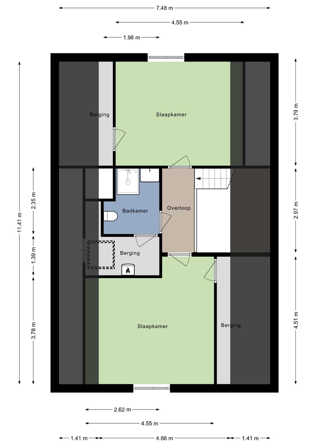
1e VERDIEPING
Middels de vaste trapopgang op de begane grond bereiken jullie de overloop op de eerste verdieping. De overloop is afgewerkt met vloerbedekking, spachtelputz wanden en een houten schroten plafond. De overloop biedt toegang tot twee ruime slaapkamers en de badkamer.

Slaapkamer 2 is afgewerkt met vloerbedekking, gesauste en behangen wanden en plafondplaten. De slaapkamer is voorzien van een riante bergkast en airconditioning (2022).

Slaapkamer 3 is afgewerkt met vloerbedekking, gesauste en behangen wanden en plafondplaten. De slaapkamer is voorzien van een riante bergkast en airconditioning (2022).

De badkamer is afgewerkt met een betegelde vloer, betegelde wanden en een gestuct plafond. De badkamer is voorzien van een 3e toilet (sanibroyeur), wastafel en douche. De badkamer biedt toegang tot de technische ruimte waar zich de omvormer t.b.v. de zonnepanelen en CV-Ketel (Vaillant, 2011) bevindt.

______________

Het lijkt ons dus overduidelijk dat deze woning zeer beslist een bezichtiging waard is!
Zien is geloven dus druk op de knop en neem contact met ons op.

Het meetwerk is gebaseerd op de NEN2580. De Meetinstructie is bedoeld om een meer eenduidige manier van meten toe te passen voor het geven van een indicatie van de gebruiksoppervlakte. De Meetinstructie sluit verschillen in meetuitkomsten niet volledig uit, door bijvoorbeeld interpretatieverschillen, afrondingen of beperkingen bij het uitvoeren van de meting.

ALGEMEEN
Bezichtiging uitsluitend via ons kantoor. Deze informatie is geheel vrijblijvend, uitsluitend voor geadresseerde bestemd en niet bedoeld als aanbod. Ten aanzien van de juistheid van de vermelde informatie kan door makelaarskantoor Buuron & Kuipers Makelaars Taxateurs B.V. geen aansprakelijkheid worden aanvaard, noch kan aan de vermelde informatie enig recht worden ontleend.

Kaart

Kenmerken

Overdracht

Referentienummer
2498
Vraagprijs
€ 749.000,- k.k.
Status
Verkocht onder voorbehoud
Aanvaarding
In overleg
Aangeboden sinds
Woensdag 1 oktober 2025
Laatste wijziging
Dinsdag 18 november 2025

Bouw

Type object
Woonhuis, eengezinswoning, vrijstaande woning
Soort bouw
Bestaande bouw
Toegankelijkheid
Senioren
Bouwperiode
1974
Dakbedekking
Dakpannen
Type dak
Zadeldak
Isolatievormen
Dakisolatie
Dubbel glas
Muurisolatie

Oppervlaktes en inhoud

Perceeloppervlakte
627 m²
Woonoppervlakte
160 m²
Woonkameroppervlakte
54,58 m²
Keukenoppervlakte
10,16 m²
Inhoud
598 m³
Oppervlakte externe bergruimte
25 m²

Indeling

Aantal bouwlagen
2
Aantal kamers
5 (waarvan 3 slaapkamers)
Aantal badkamers
2 (en 1 apart toilet)

Locatie

Ligging
Aan rustige weg
In woonwijk

Tuin

Type
Tuin rondom
Hoofdtuin
Ja
Oriëntering
Zuiden
Heeft een achterom
Ja
Staat
Prachtig aangelegd

Energieverbruik

Energielabel
B

CV ketel

CV ketel
Vaillant
Warmtebron
Gas
Bouwjaar
2011
Combiketel
Ja
Eigendom
Eigendom

Uitrusting

Aantal parkeerplaatsen
3
Aantal overdekte parkeerplaatsen
2
Warm water
CV-ketel
Verwarmingssysteem
Airconditioning
Centrale verwarming
Houtkachel
Vloerverwarming (gedeeltelijk)
Ventilatie methode
Mechanische ventilatie
Natuurlijke ventilatie
Badkamervoorzieningen Badkamer 1
Douche
Inloopdouche
Toilet
Wastafelmeubel
Badkamervoorzieningen Badkamer 2
Douche
Toilet
Wastafel
Parkeergelegenheid
Garage
Heeft airco
Ja
Tuin aanwezig
Ja
Heeft een garage
Ja
Heeft een dakraam
Ja
Heeft zonwering
Ja
Heeft zonnepanelen
Ja
Heeft ventilatie
Ja

Kadastrale gegevens

Kadastrale aanduiding
Steenbergen Q 3706
Perceeloppervlakte
627 m²
Omvang
Geheel perceel
Eigendomsituatie
Eigen grond
Lasten
Met afkoopoptie

Brochure(s) en overige bijlagen

BuuronKuipers.Brochure.Henegouwen4.Steenbergen..pdf Download