Verkocht onder voorbehoud:Nassaulaan 1, 4651 AA Steenbergen - Foto
Verkocht onder voorbehoud
+50

Nassaulaan 1 4651 AA Steenbergen € 550.000,- k.k.

  • Woonhuis
  • 5 kamers
  • 4 slaapkamers
  • 1 badkamer
  • Bouwjaar 1986
  • 233 m² perceeloppervlakte
  • 138 m² gebruiksoppervlakte
  • B Energielabel B
Royaal levensloopbestendig wonen met een flexibele indeling.

Beschrijving

Aan de rand van het bruisende centrum van Steenbergen staat deze charmante, verrassend royale woning te wachten op haar nieuwe bewoners. Een plek waar rust en ruimte samenkomen met alle voorzieningen binnen handbereik.

Of jullie nu dromen van een levensloopbestendige woning, een kantoor aan huis, praktijk of een fijne gezinswoning: op deze plek kán het allemaal! De ruime woonkamer is perfect voor spelletjesavonden, de eetkamer voor verjaardagsfeestjes en de tuin… voor alles eigenlijk. De slaapkamers geven ieder gezinslid een eigen plekje, en de zolder is ideaal als tienerparadijs, gameroom of knutselruimte.

HIGHLIGHTS
• Duurzaam wonen? Check! De woning is voorzien van een energielabel B en beschikt over 19 zonnepanelen!
• Even de deur uit? Binnen een paar minuten sta je in het centrum, en steek je de straat over dan wandel je zó langs het water waar vissers graag hun hengel uitgooien.
• Parkeerstress? Wat is dat? Met de oprit aan huis ben je altijd voorzien van een parkeerplaats.
• Avondzon-liefhebbers opgelet! De tuin op het Oosten is jullie nieuwe favoriete plek voor borrels, BBQ’s en zwoele zomeravonden.
• Eetkamer met wow-factor: schuif de pui open en binnen en buiten worden één heerlijke leefruimte.
• In de toekomst plannen voor levensloopbestendig (gelijkvloers) wonen zou hier natuurlijk ook uitstekend kunnen. Tevens zien wij mogelijkheden voor kantoor of praktijk aan huis.
• Aan ruimte geen gebrek! Wij bieden een woonoppervlakte van ca.138 m², gebouw gebonden buitenruimte van ca. 18 m², overige inpandige ruimte van ca. 5 m² en een inhoud van ca. 506 m³.

Bijzonderheden:
- Zie o.a. de door verkoper ingevulde Vragenlijst en Lijst van Zaken in de dataroom van Eerlijk Bieden.

Jullie wonen nu in Steenbergen of misschien wel in Groot Rijnmond of omgeving Breda. Jullie willen daar niets missen, maar willen toch wat meer rust en een luxer woongenot. Dan is dit jullie nieuwe woning! Op korte afstand bevindt zich het stadscentrum, de levendige jachthaven, supermarkten, het stadspark en diverse horeca.

Steenbergen is rijk aan restaurants, eetcafés, basis- en middelbare school en horecagelegenheden. Tevens zijn er vele sport- en recreatieactiviteiten aanwezig en biedt Steenbergen alle winkels die jullie maar nodig hebben. Ook willen jullie een rustieke woonomgeving ervaren. De idyllische loop en fietsroutes rondom Steenbergen en richting Zeeland zorgen voor een kijkje in het prachtige West-Brabantse landschap. Steenbergen heeft een snelle verbinding met o.a. Rotterdam, Breda en Antwerpen.

INDELING
BEGANE GROND (betonnen vloer+ vloerverwarming)
Aan de rand van het bruisende centrum is deze fijne woning gelegen, jullie parkeren de auto op de oprit en lopen middels de voortuin de woning binnen. De entree is afgewerkt met een marmeren vloer, spachtelputz wanden en een kunststof delen plafond met lichtkoepel. Vanuit de entree komen jullie binnen in de zitkamer.

De zitkamer is afgewerkt met een marmeren vloer, spachtelputz wanden en een kuststof delen plafond met lichtkoepel. Deze ruimte zou natuurlijk ook goed in gebruik kunnen genomen worden als slaapkamer (ten behoeve van gelijkvloers wonen), kantoor, praktijk aan huis of een andere combinatie van wonen en werken.

Een sfeervolle woonkamer waar je meteen het echte thuisgevoel ervaart. De woonkamer is afgewerkt met een marmeren vloer, deels spachtelputz wanden en deels schoonmetselwerk wanden en een kuststof delen plafond. De woonkamer is voorzien van elektrische screens en zonwering. Vanuit de woonkamer is er toegang tot de open keuken, eetkamer en tweede hal die beschikt over de trapopgang naast de eerste verdieping en betegeld toilet met fonteintje.

De eetkamer is de perfecte plek voor lange, sfeervolle diners, terwijl jullie genieten van een prachtig uitzicht op de tuin! De kunststof schuifpui zorgt ervoor dat je bij mooi weer in één stap kunt besluiten dat het eigenlijk tijd is voor een borrel in de tuin. De eetkamer is voorzien van airconditioning en biedt toegang tot de technische ruimte die beschikt over de aansluiting voor wasmachine en droger. Deze ruimte is in gebruik te nemen als slaapkamer waarbij de technische ruimte omgebouwd kan worden tot badkamer.

Nieuwe recepten uitproberen? Deze zullen zeker lukken in deze lichte open keuken! De keuken is afgewerkt met een marmeren vloer, betegelde wanden en een kunststof delen plafond. De in een hoek opgestelde keukeninrichting is voorzien van een inductie kookplaat, onder- en bovenkastjes, spoelbak, combi-oven, koelkast en screens. De keuken biedt toegang tot de bijkeuken die toegang biedt tot de zij-ingang van de woning.

De tweede hal beschikt over de trapopgang naar de eerste verdieping en biedt toegang tot het betegeld toilet met fonteintje.

1e VERDIEPING (betonnen vloer)
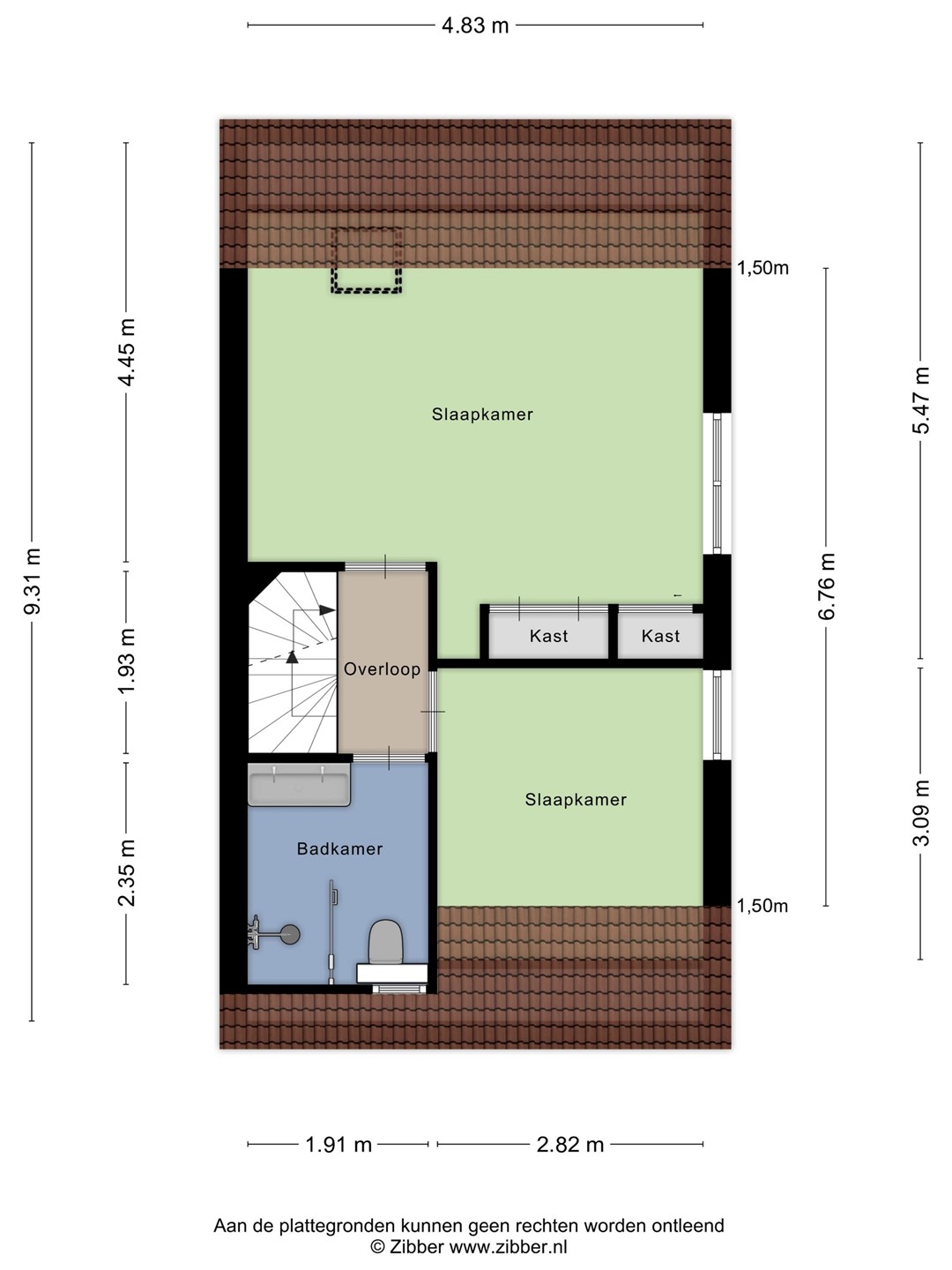
Middels de vaste trap op de begane grond bereiken jullie de overloop op de eerste verdieping. De overloop is afgewerkt met een laminaat vloer, spuitwerk wanden en een plafond. De overloop biedt toegang tot 2 slaapkamers, de badkamer en de tweede verdieping middels een vaste trapopgang.

Slaapkamer 1, aan voorzijde gelegen, is afgewerkt met een laminaat vloer, behangen wanden en plafondplaten. De slaapkamer is voorzien van inbouwkasten en een handmatig rolluik.

Slaapkamer 2, aan achterzijde gelegen, is afgewerkt met een laminaat vloer, behangen wanden en plafondplaten. De slaapkamer is voorzien van een gevelraam met een handmatig rolluik.

Kom tot rust in deze prachtige badkamer! De moderne badkamer is afgewerkt met een betegelde vloer, betegelde wanden en een kunststof plafond. De badkamer is voorzien van een 2e toilet, inloopdouche, wastafelmeubel, design radiator en een infra rood paneel.

2e VERDIEPING (betonnen vloer)
Middels de vaste trap op de eerste verdieping bereiken jullie de overloop op de tweede verdieping. De overloop is afgewerkt met een laminaatvloer, behangen wanden en plafondplaten. De overloop biedt toegang tot de derde slaapkamer en beschikt over de CV-Ketel (Bosch, 2013), MV-unit en (eventueel) opstelplaats voor de wasmachine en droger.

Slaapkamer 3 is afgewerkt met een laminaat vloer, behangen wanden en plafondplaten. De slaapkamer is voorzien van inbouwkasten en een dakraam.

TUIN
De woning beschikt over een voor- en achtertuin. Geniet 's morgens lekker met een bakje koffie in de tuin op het Oosten. De achtertuin is voorzien van een terras, borders, sierbestrating, en biedt toegang tot de aangebouwde stenen berging. Dit is de perfecte plek om heerlijk te genieten van alle seizoenen met een hapje en een drankje. In de overkapping kunnen jullie heerlijke gerechten maken en vervolgens met een glaasje wijn nuttigen.

De aangebouwde stenen berging is voorzien van stroom en is een handige plek om de tuinspulletjes op te bergen.
______________

Het lijkt ons dus overduidelijk dat deze woning zeer beslist een bezichtiging waard is!
Zien is geloven dus druk op de knop en neem contact met ons op.

Het meetwerk is gebaseerd op de NEN2580. De Meetinstructie is bedoeld om een meer eenduidige manier van meten toe te passen voor het geven van een indicatie van de gebruiksoppervlakte. De Meetinstructie sluit verschillen in meetuitkomsten niet volledig uit, door bijvoorbeeld interpretatieverschillen, afrondingen of beperkingen bij het uitvoeren van de meting.

ALGEMEEN
Bezichtiging uitsluitend via ons kantoor. Deze informatie is geheel vrijblijvend, uitsluitend voor geadresseerde bestemd en niet bedoeld als aanbod. Ten aanzien van de juistheid van de vermelde informatie kan door makelaarskantoor Buuron & Kuipers Makelaars Taxateurs B.V. geen aansprakelijkheid worden aanvaard, noch kan aan de vermelde informatie enig recht worden ontleend.

Kaart

Kenmerken

Overdracht

Referentienummer
3123
Vraagprijs
€ 550.000,- k.k.
Status
Verkocht onder voorbehoud
Aanvaarding
In overleg
Aangeboden sinds
Maandag 24 november 2025
Laatste wijziging
Dinsdag 14 april 2026

Bouw

Type object
Woonhuis, eengezinswoning, geschakelde twee onder een kap woning
Soort bouw
Bestaande bouw
Toegankelijkheid
Mindervaliden
Senioren
Bouwperiode
1986
Dakbedekking
Dakpannen
Type dak
Zadeldak
Isolatievormen
Dakisolatie
Dubbel glas
HR-glas
Muurisolatie
Vloerisolatie

Oppervlaktes en inhoud

Perceeloppervlakte
233 m²
Woonoppervlakte
138 m²
Inhoud
506 m³
Oppervlakte overige inpandige ruimten
5 m²
Oppervlakte gebouwgebonden buitenruimte
18 m²

Indeling

Aantal bouwlagen
3
Aantal kamers
5 (waarvan 4 slaapkamers)
Aantal badkamers
1 (en 1 apart toilet)

Locatie

Ligging
Dichtbij openbaar vervoer
In centrum
Nabij school
Nabij snelweg

Tuin

Type
Achtertuin
Hoofdtuin
Ja
Oriëntering
Noorden
Staat
Dient nog te worden aangelegd.

Energieverbruik

Energielabel
B

CV ketel

CV ketel
Bosch
Warmtebron
Gas
Bouwjaar
2013
Combiketel
Ja
Eigendom
Eigendom

Uitrusting

Aantal parkeerplaatsen
2
Warm water
CV-ketel
Zonnecollectoren
Verwarmingssysteem
Airconditioning
Centrale verwarming
Vloerverwarming (gedeeltelijk)
Zonnecollectoren
Ventilatie methode
Mechanische ventilatie
Natuurlijke ventilatie
Badkamervoorzieningen
Douche
Toilet
Vloerverwarming
Wastafelmeubel
Heeft airco
Ja
Tuin aanwezig
Ja
Heeft schuur/berging
Ja
Heeft een dakraam
Ja
Heeft een schuifpui
Ja
Heeft zonnepanelen
Ja
Heeft ventilatie
Ja

Kadastrale gegevens

Kadastrale aanduiding
Steenbergen F 1149
Perceeloppervlakte
233 m²
Omvang
Geheel perceel
Eigendomsituatie
Eigen grond

Media

Video

Virtuele tour

Plattegronden

Brochure(s) en overige bijlagen

BuuronKuipers.Brochure.Nassaulaan1.Steenbergen.pdf Download