Onder bod:Piet Snoeijersstraat 8, 4651 TT Steenbergen - Foto
Onder bod
+51

Piet Snoeijersstraat 8 4651 TT Steenbergen € 465.000,- k.k.

  • Woonhuis
  • 5 kamers
  • 4 slaapkamers
  • 1 badkamer
  • Bouwjaar 2021
  • 124 m² perceeloppervlakte
  • 123 m² gebruiksoppervlakte
  • A Energielabel A
Welkom thuis! Instapklare tussenwoning uit 2021!

Beschrijving

Deze instapklare tussen woning is er één waar je direct warm voor loopt. Met een energielabel A, 4 riante slaapkamers, uitgebouwde woonruimte en vloerverwarming , vormt deze woning de perfecte combinatie van comfort en uitstraling. Krijgen jullie bij het bekijken van de foto’s al vlinders in de buik? Stap binnen en ervaar zelf dat onmiskenbare “ja, dit is ‘m!”-gevoel.

HIGHLIGHTS
• Deze woning is gebouwd in 2021 en voldoet daarmee volledig aan de geldende nieuwbouwnormen.
• Logés zijn meer dan welkom! Dankzij de vaste trap naar de tweede verdieping en de dakkapel beschikt de woning over maar liefst 4 volwaardige slaapkamers.
• Dankzij de uitgebouwde woonruimte op de begane grond is een royale, open leefruimte ontstaan. Hier vloeien wonen, leven en koken naadloos in elkaar over.
• Energiezuinig wonen? Check! De woning is uitgerust met 3 zonnepanelen en een energielabel A. Tevens beschikt de woning over vloerverwarming op de begane grond én 1e verdieping.
• Van loungen tot borrelen: deze zonnige en onderhoudsvriendelijke tuin op het Zuidoosten kan het allemaal.
• Hier komt jullie innerlijke chef tot leven: een keuken die van alle moderne gemakken is voorzien.
• Ruimte in overvloed! Wij bieden een woonoppervlakte van ca. 124 m², externe bergruimte van ca. 5 m² en een inhoud van ca. 462 m³.

Bijzonderheden:
- Zie o.a. de door verkoper ingevulde Vragenlijst en Lijst van Zaken in de dataroom van Eerlijk Bieden, de directe link naar de dataroom staat achter in de brochure.

Jullie wonen nu in Steenbergen of misschien wel in Groot Rijnmond of omgeving Breda. Jullie willen daar niets missen, maar willen toch wat meer rust en een luxer woongenot. Dan is dit jullie nieuwe woning! Op loopafstand bevindt zich het stadscentrum, de levendige jachthaven, supermarkten, het stadspark en diverse horeca.

Steenbergen is namelijk een gezellig stadje en is rijk aan restaurants, eetcafés en andere horecagelegenheden. Tevens zijn er vele sport- en recreatieactiviteiten aanwezig en biedt Steenbergen alle winkels die jullie maar nodig hebben. Ook willen jullie een rustieke woonomgeving ervaren. De idyllische loop en fietsroutes rondom Steenbergen en richting Zeeland zorgen voor een kijkje in het prachtige West-Brabantse landschap. Steenbergen heeft een snelle verbinding met o.a. Bergen op Zoom, Breda, Rotterdam en Antwerpen.

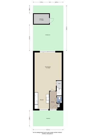
INDELING
BEGANE GROND
Bij aankomst valt direct de rustige en prettige ligging van de woning op. Parkeer de auto voor de deur en stap binnen. De entree is afgewerkt met een klik-PVC-vloer, renovlies behangen wanden en een spuitwerk plafond. De entree biedt toegang tot de meterkast, garderobe, het betegelde toilet met fonteintje en de eerste verdieping middels een vaste trapopgang.

Zodra jullie de woonkamer betreden, valt meteen de ruimte en luxe uitstraling op. De woonkamer is afgewerkt met een klik-PVC-vloer, met renovlies behangen wanden en een spuitwerk plafond. Dankzij de riante raampartijen stroomt het daglicht rijkelijk naar binnen. Vanuit de woonkamer is er toegang tot de open keuken, een praktische bergkast en de achtertuin middels de schuifpui.

Kookliefhebbers opgelet! In deze moderne open keuken kunnen jullie naar hartenlust nieuwe gerechten bereiden. De open keuken is afgewerkt met een klik-PVC-vloer, met renovlies behangen wanden en een spuitwerk plafond. De recht opgestelde moderne keuken is voorzien van een composiet werkblad, onder- en bovenkastjes, inductiekookplaat, afzuigkap, oven, koelkast, vriezer, combimagnetron en een vaatwasser.

1e VERDIEPING (betonnen verdiepingsvloer)
Middels de vaste trap op de begane grond bereiken jullie de overloop op de eerste verdieping. De overloop is afgewerkt met een klik-PVC-vloer, renovlies behangen wanden en een spuitwerk plafond. De overloop biedt toegang tot 3 slaapkamers, badkamer en tweede verdieping.

Slaapkamer 1 is afgewerkt met een klik-PVC-vloer met vloerverwarming, met renovlies behangen wanden en een spuitwerk plafond. Deze kamer beschikt over een handmatig rolluik.

Slaapkamer 2 is afgewerkt met een klik-PVC-vloer, met renovlies behangen wanden en een spuitwerk plafond. Deze kamer is voorzien van een handmatig rolluik.

Slaapkamer 3 is afgewerkt met een klik-PVC-vloer, met renovlies behangen wanden en een spuitwerk plafond.

De badkamer geeft jullie dagelijks het gevoel van een luxe hotelverblijf. De badkamer is afgewerkt met een betegelde vloer, betegelde wanden en een spuitwerk plafond. De badkamer is voorzien van een douche, wastafelmeubel, badkamerkast, tweede toilet en zowel natuurlijke- als mechanische ventilatie.

2e VERDIEPING
De overloop is afgewerkt met een klik-PVC-vloer, gesauste waden en plafondplaten. de slaapkamer is voorzien van de aansluitingen voor witgoed, knieschotkasten, een dakraam, de lucht/water warmtepomp + boiler, en de MV-unit.

Slaapkamer 4 is afgewerkt met een klik-PVC-vloer, gestucte wanden en plafondplaten. De slaapkamer is voorzien van knieschotkasten en dakkapel.

TUIN
De tuin biedt volop privacy en rust: een heerlijke buitenruimte om te ontspannen, te loungen of gezellig te tafelen met vrienden en familie. De woning beschikt over zowel een voor- als achtertuin. De zonnige achtertuin, gelegen op het zuiden, is voorzien van een terras, sierbestrating. buitenverlichting, een achterom en een berging met elektra en is omheind met houten schuttingen.

________________

Het lijkt ons dus overduidelijk dat deze woning zeer beslist een bezichtiging waard is!
Zien is geloven dus druk op de knop en neem contact met ons op.

Het meetwerk is gebaseerd op de NEN2580. De Meetinstructie is bedoeld om een meer eenduidige manier van meten toe te passen voor het geven van een indicatie van de gebruiksoppervlakte. De Meetinstructie sluit verschillen in meetuitkomsten niet volledig uit, door bijvoorbeeld interpretatieverschillen, afrondingen of beperkingen bij het uitvoeren van de meting.

ALGEMEEN
Bezichtiging uitsluitend via ons kantoor. Deze informatie is geheel vrijblijvend, uitsluitend voor geadresseerde bestemd en niet bedoeld als aanbod. Ten aanzien van de juistheid van de vermelde informatie kan door makelaarskantoor Buuron & Kuipers Makelaars Taxateurs B.V. geen aansprakelijkheid worden aanvaard, noch kan aan de vermelde informatie enig recht worden ontleend

Kaart

Kenmerken

Overdracht

Referentienummer
3287
Vraagprijs
€ 465.000,- k.k.
Status
Onder bod
Aanvaarding
In overleg
Aangeboden sinds
Donderdag 29 januari 2026
Laatste wijziging
Donderdag 12 maart 2026

Bouw

Type object
Woonhuis, eengezinswoning, tussenwoning
Soort bouw
Bestaande bouw
Bouwperiode
2021
Dakbedekking
Dakpannen
Type dak
Zadeldak
Isolatievormen
Dakisolatie
Dubbel glas
HR-glas
Muurisolatie
Vloerisolatie
Volledig geïsoleerd

Oppervlaktes en inhoud

Perceeloppervlakte
124 m²
Woonoppervlakte
123 m²
Inhoud
462 m³
Oppervlakte externe bergruimte
5 m²

Indeling

Aantal bouwlagen
3
Aantal kamers
5 (waarvan 4 slaapkamers)
Aantal badkamers
1 (en 1 apart toilet)

Locatie

Ligging
Aan rustige weg
In woonwijk

Tuin

Type
Achtertuin
Oriëntering
Zuidoost
Staat
Normaal

Energieverbruik

Energielabel
A

Uitrusting

Warm water
Elektrische boiler
Verwarmingssysteem
Vloerverwarming (gedeeltelijk)
Warmtepomp
Ventilatie methode
Mechanische ventilatie
Natuurlijke ventilatie
Keukenvoorzieningen
Inbouwapparatuur
Badkamervoorzieningen
Douche
Toilet
Wastafel
Tuin aanwezig
Ja
Heeft schuur/berging
Ja
Heeft een dakraam
Ja
Heeft zonnepanelen
Ja
Heeft ventilatie
Ja

Kadastrale gegevens

Kadastrale aanduiding
Steenbergen Q 5878
Perceeloppervlakte
124 m²
Omvang
Geheel perceel
Eigendomsituatie
Eigen grond

Media

Video

Virtuele tour

Plattegronden

Brochure(s) en overige bijlagen

BuuronKuipers Brochure.PietSnoeijersstraat8.Steenbergen-gecomprimeerd.pdf Download